Apartamento en venta en Mijas zona Las Lagunas
Datos básicos
- SP-99042
- 364.000 €
- 97 m2(3.753 €/m2)
- Málaga
- Mijas
- Las Lagunas
Distribución e instalaciones
- 2
- 2
Varios
- Sí
Certificado energético
- A
Detalles
364.000 €
Tranquilo complejo residencial vallado que consta de apartamentos de 1,2 y 3 dormitorios, y áticos de 3 dormitorios. Todas las viviendas disponen de garaje y trastero. Aire acondicionado con bomba de calor. Calefacción por suelo radiante en baños con control independiente. Con espectaculares terrazas desde las que contemplar la naturaleza que la rodea.
Fantástica ubicación, con la mejor oferta comercial de la Costa del Sol a 5 minutos, y a tan solo 2 Km de la playa. Rápido acceso a los principales medios de comunicación: autovía y estación de tren (2 Km), y aeropuerto (25 Km). Podrá disfrutar de una verdadera calidad de vida, con una gran variedad de campos de golf, 12 Km de costa de cuidado litoral, sol, naturaleza, y la gastronomía de la zona, desde sus restaurantes internacionales hasta su acogedora cocina local.
Mijas combina a la perfección la tradición de sus calles empedradas de casas encaladas y los patios con sus macetas de flores coloridas, con la modernidad y la mejor oferta de ocio de la Costa del Sol. Puede presumir de una situación privilegiada entre el mar y la montaña, convirtiéndola en uno de los destinos turísticos más atractivos de la provincia.
- hace 5 días
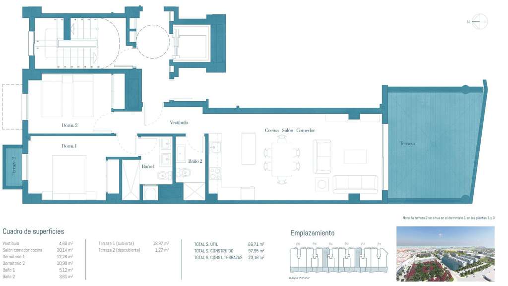
- 97 m2
- 3.752,58 €/m2
- 2
- 2
Global Spain
Contactar
Compartir
Tu opinión













