Apartamento en venta en Mijas zona Hipódromo Costa del Sol
Datos básicos
- NB-75668
- 497.000 €
- 110 m2(4.518 €/m2)
- Málaga
- Mijas
- Hipódromo Costa del Sol
Distribución e instalaciones
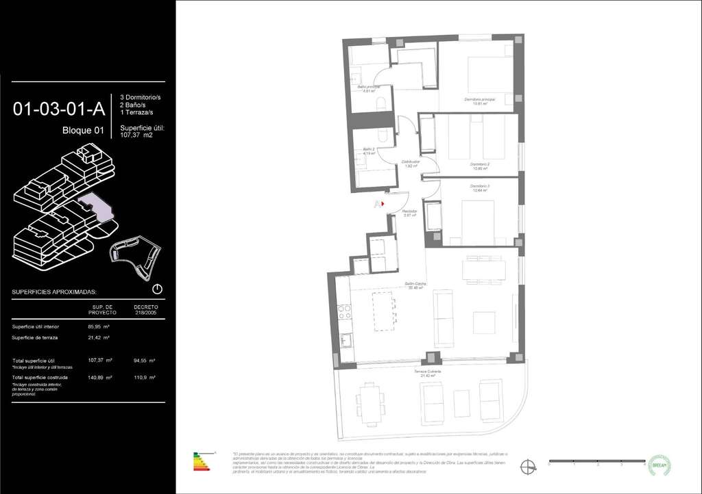
- 3
- 2
Varios
- Sí
Certificado energético
Detalles
497.000 €
Viviendas de Obra Nueva en Mijas Costa
Diseño vanguardista en plena naturaleza y a solo minutos del mar
Esta exclusiva promoción de obra nueva en Mijas Costa combina a la perfección la arquitectura contemporánea con el estilo de vida mediterráneo. Situado en un enclave natural de gran belleza, el residencial se inspira en los acantilados del Mediterráneo, ofreciendo viviendas que se integran en el paisaje con vistas despejadas al mar y a la montaña desde las plantas más altas.
Apartamentos con terrazas amplias, jardines o solárium privado
La promoción ofrece viviendas de 1, 2 y 3 dormitorios adaptadas a diferentes estilos de vida.
Plantas bajas con jardín privado
Plantas intermedias con amplias terrazas
Áticos con solárium privado y vistas panorámicas al mar
Cada propiedad cuenta con acabados de alta calidad y equipamientos modernos:
Puerta de acceso blindada
Cocina amueblada con electrodomésticos incluidos
Aire acondicionado por conductos (frío-calor)
Producción de agua caliente mediante aerotermia
Plaza de aparcamiento incluida en el precio
Zonas comunes para el bienestar y la vida activa
Diseñado para promover un estilo de vida saludable, el residencial ofrece completas instalaciones:
Dos piscinas exteriores con cloración salina y zonas ajardinadas
Spa interior con piscina climatizada, sauna, baño frío y duchas
Gimnasio totalmente equipado
Sala coworking con cocina y zona de descanso
Pool bar exterior con chill-out exclusivo
Ubicación estratégica en Mijas Costa, cerca de todo
La urbanización está perfectamente ubicada para disfrutar tanto de la tranquilidad natural como del acceso rápido a servicios y lugares de interés de la Costa del Sol:
Playa – 1.5 km
Fuengirola – 8 km
Marbella – 25 km
Málaga ciudad – 30 km
Aeropuerto de Málaga – 28 km
Golf de La Cala Resort – 10 km
Centro comercial Miramar – 9 km
A solo 800 metros se está construyendo el nuevo Costa del Sol Park, un gran espacio verde con lago, senderos, skatepark y zonas para el ocio familiar.
Viva el auténtico estilo de vida mediterráneo en Mijas Costa
Con su equilibrio entre naturaleza, diseño y ubicación, este proyecto es ideal como residencia habitual, segunda vivienda o inversión. No deje pasar la oportunidad de vivir en una de las zonas más deseadas de la Costa del Sol.
Contáctenos hoy para más información o agendar una visita a su nuevo hogar en Mijas Costa.
- 20/12/2025
- 110 m2
- 4.518,18 €/m2
- 3
- 2
Buy in Spain
Contactar
Compartir
Tu opinión












