Apartamento en venta en Mijas zona Playa Marina
Datos básicos
- SP-98082
- 591.500 €
- 144 m2(4.108 €/m2)
- Málaga
- Mijas
- Playa Marina
Distribución e instalaciones
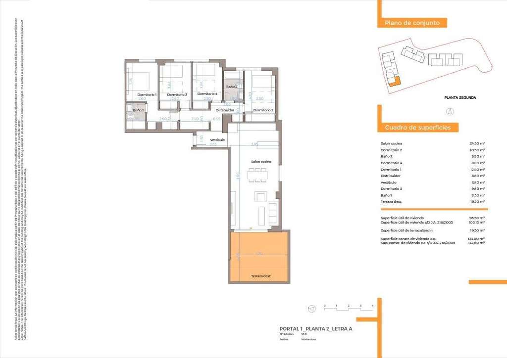
- 4
- 2
Varios
- Sí
Certificado energético
- B
Detalles
591.500 €
Apartamentos de nueva construcción con vistas al mar en La Cala de Mijas
Exclusiva urbanización residencial en la Costa del Sol
Descubra esta moderna comunidad cerrada de 72 apartamentos de nueva construcción en La Cala de Mijas, una de las zonas más cotizadas de la Costa del Sol. Con su encanto único, sus playas de arena dorada, sus campos de golf y su animado estilo de vida, La Cala ofrece el equilibrio perfecto entre relajación y ocio. La urbanización está idealmente situada a solo 150 m de la playa de Playamarina y a solo 10 minutos en coche de Fuengirola.
Viviendas modernas con vistas al mar
Este espectacular proyecto ofrece apartamentos de 2, 3 y 4 dormitorios con amplias distribuciones, diseñados para ofrecer comodidad y funcionalidad. Muchas viviendas disfrutan de impresionantes vistas al mar, mientras que las unidades de la planta baja cuentan con jardines privados y los áticos disponen de amplias terrazas ideales para disfrutar del aire libre. Todas las propiedades incluyen al menos una plaza de aparcamiento privada y un trastero.
Características y acabados de alta calidad
Cada detalle ha sido cuidadosamente planificado para garantizar el máximo confort y calidad de vida:
Cocinas totalmente amuebladas y equipadas con electrodomésticos
Producción de agua caliente mediante sistema aerotérmico
Aire acondicionado por conductos
Puerta de entrada blindada
Amplias opciones de personalización para adaptar cada vivienda a su gusto
Espacios comunitarios excepcionales
La promoción ofrece instalaciones comunes de primera clase diseñadas para el ocio y el bienestar:
Jardines con vegetación mediterránea
Gran piscina
Gimnasio totalmente equipado
Sala social-gourmet para residentes
Ubicación privilegiada con excelentes conexiones
La Cala de Mijas goza de una ubicación privilegiada con rápido acceso a los servicios esenciales y opciones de ocio:
Playa de Playamarina: 150 m
Club de golf Chaparral: 2 km
Fuengirola: 10 km
Marbella: 23 km
Puerto Banús: 30 km
Aeropuerto Internacional de Málaga: 25 km
Estación de tren María Zambrano de Málaga: 40 km
La zona cuenta con supermercados, centros de salud, farmacias, restaurantes y centros comerciales, todos ellos a poca distancia en coche. Su conexión directa con la autopista A-7 y su proximidad a la autopista de peaje AP-7 garantizan una excelente conectividad a lo largo de la Costa del Sol.
Viva el estilo de vida mediterráneo
Ya sea como residencia permanente, casa de vacaciones o inversión, estos apartamentos en La Cala de Mijas representan una oportunidad única para disfrutar de lo mejor de la Costa del Sol, combinando un diseño moderno, vistas al mar y unas comodidades inmejorables.
Póngase en contacto con nosotros hoy mismo para concertar una visita y asegurarse su nueva vivienda en La Cala de Mijas.
- hace 19 días
- 144 m2
- 4.107,64 €/m2
- 4
- 2
Global Spain
Contactar
Compartir
Tu opinión



















