Apartamento en venta en Mijas zona Urb. Buenavista
Datos básicos
- SP-74030
- 695.000 €
- 102 m2(6.814 €/m2)
- Málaga
- Mijas
- Urb. Buenavista
Distribución e instalaciones
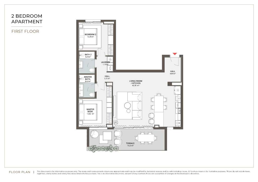
- 2
- 2
Varios
- Sí
Certificado energético
- B
Detalles
695.000 €
Residencias de lujo de nueva construcción con vistas panorámicas al mar en Buenavista, Mijas - Costa del Sol
Vida moderna y exclusiva sobre el Mediterráneo
Descubra una extraordinaria promoción residencial nueva en Buenavista, Mijas, a solo unos minutos de las doradas playas y la animada costa de la Costa del Sol. Esta exclusiva comunidad cerrada cuenta con 105 apartamentos y áticos de lujo, así como 14 villas con jardín y 14 villas sky, todas ellas con impresionantes vistas panorámicas al mar desde cada vivienda. Diseñadas para aquellos que valoran la tranquilidad, la sofisticación y la elegancia mediterránea, estas residencias combinan una arquitectura vanguardista con un entorno natural.
Interiores elegantes y diseño inteligente
Cada vivienda ha sido cuidadosamente diseñada para potenciar la luz, el espacio y el confort. Las amplias distribuciones diáfanas conectan a la perfección con grandes terrazas, ideales para relajarse o recibir invitados. Los materiales de primera calidad, las cocinas totalmente amuebladas y equipadas y la calefacción por suelo radiante en todas las habitaciones (con calefacción eléctrica en los baños) crean un ambiente cálido y acogedor durante todo el año.
Todas las propiedades incluyen:
Unidades de 2 dormitorios con 1 plaza de aparcamiento, unidades de 3 dormitorios con 2 plazas de aparcamiento y un trastero
Sistema de bomba de calor aerotérmica para aire acondicionado y agua caliente
Control de climatización independiente para cada habitación
Sistema domótico para la gestión de la climatización y la iluminación a través de una aplicación móvil
Iluminación LED en todos los interiores y terrazas
Videovigilancia y puesto de vigilancia con identificación de visitantes
Sistema de alarma instalado para máxima seguridad
Servicios de estilo resort en una comunidad cerrada
Los residentes disfrutan de acceso a servicios de primera clase diseñados para el bienestar y el ocio. El complejo cerrado incluye hermosos jardines con senderos para caminar, piscinas panorámicas al aire libre, piscina cubierta climatizada, gimnasio y centro de bienestar, áreas de juego para niños, espacios de coworking y salones sociales. Cada detalle ha sido diseñado para crear un ambiente donde la relajación, la productividad y la recreación se combinan a la perfección.
Ubicación privilegiada en el corazón de la Costa del Sol
Situada en la zona elevada de El Higuerón, Buenavista, esta promoción ofrece una conectividad excepcional, al tiempo que mantiene la privacidad y la tranquilidad.
Playas: 3 km
Higuerón Resort: 5 minutos
Benalmádena, Fuengirola, Mijas Pueblo: 5 minutos
Aeropuerto Internacional de Málaga: 10 km (10 minutos en coche, 30 minutos en tren)
Campos de golf: 10-20 km
Puerto Marina y centros comerciales: 6-8 km
La casa de sus sueños en el Mediterráneo le espera
Disfrute del equilibrio perfecto entre lujo, naturaleza y comodidad en uno de los lugares más codiciados de la Costa del Sol. Ya sea como residencia permanente, refugio vacacional u oportunidad de inversión, esta promoción representa lo mejor de la vida mediterránea.
Póngase en contacto con nosotros hoy mismo para concertar una visita y descubrir la casa de sus sueños en Buenavista-Mijas, Costa del Sol.
425
- hace 5 días
- 102 m2
- 6.813,73 €/m2
- 2
- 2
Global Spain
Contactar
Compartir
Tu opinión


































