Apartamento en venta en Mijas zona Calanova Golf
Datos básicos
- SP-90341
- 470.000 €
- 89 m2(5.281 €/m2)
- Málaga
- Mijas
- Calanova Golf
Distribución e instalaciones
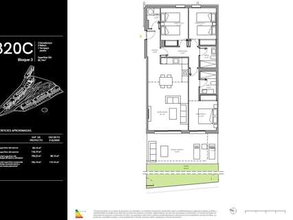
- 3
- 2
Varios
- Sí
Certificado energético
- B
Detalles
470.000 €
APARTAMENTOS CON VISTAS AL MAR O CAMPO DE GOLF EN LA COSTA DEL SOL
Complejo residencial totalmente vallado que consta de 6 edificios, con un total de 108 apartamentos y áticos de 2 y 3 dormitorios, la mitad de ellos con vistas al campo de golf y la sierra de Mijas, y la otra mitad con increíbles vistas panorámicas al mar, para que puedas elegir el que más te guste. Todos cuentan con plaza de aparcamiento privada. Cuenta con jardines comunitarios con diseño tropical y una impresionante piscina. Asimismo podrás disfrutar de gimnasio, área social, y zona de coworking. Las plantas bajas disponen de jardín privado, y a partir de la segunda plante dispones de áticos dúplex con solarium.
Podrás disfrutar de una verdadera calidad de vida, con una gran variedad de campos de golf, 12 Km de costa tranquilo litoral, sol, naturaleza, y la gastronomía de su zona, desde sus restaurantes internacionales hasta su acogedora cocina local.
Mijas combina a la perfección la tradición de sus calles empedradas de casas encaladas y los patios con sus macetas de flores coloridas, con la modernidad y la mejor oferta de ocio de la Costa del Sol. Puede presumir de una situación privilegiada entre el mar y la montaña, convirtiéndola en uno de los destinos turísticos más atractivos de la provincia.
425
- ayer
- 89 m2
- 5.280,9 €/m2
- 3
- 2
Global Spain
Contactar
Compartir
Tu opinión
















