Ático en venta en Mijas zona Las Lagunas de Mijas
Datos básicos
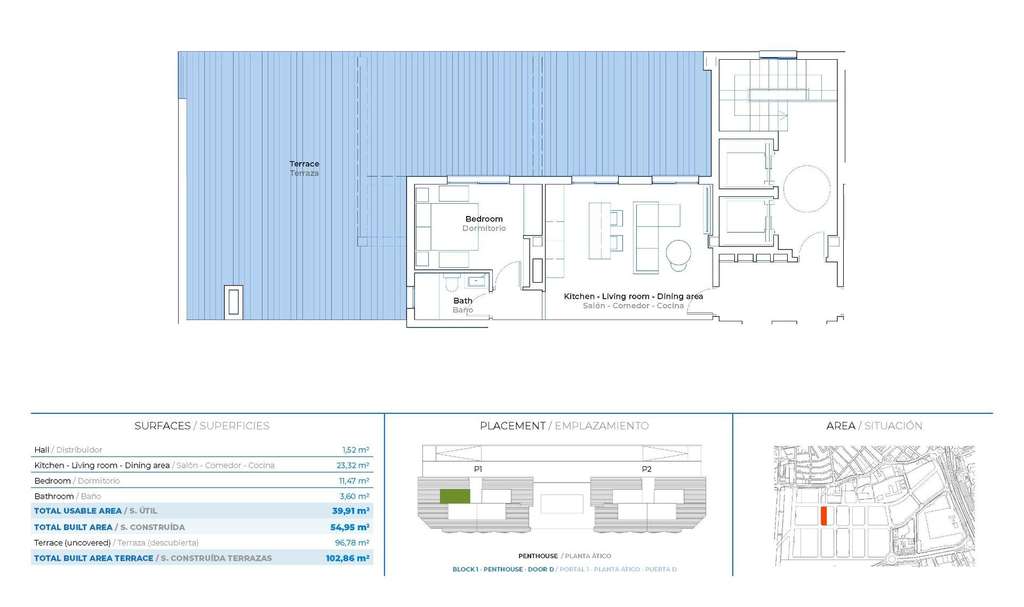
- SP-82817
- 368.900 €
- 54 m2(6.831 €/m2)
- Málaga
- Mijas
- Las Lagunas de Mijas
Distribución e instalaciones
- 1
- 1
Varios
- Sí
Certificado energético
- B
Detalles
368.900 €
Modernos apartamentos de un dormitorio en Mijas Costa: comodidad, estilo y excelente relación calidad-precio
Vida contemporánea en Las Lagunas, Mijas Costa
Descubra una nueva y emocionante promoción de 116 elegantes apartamentos de un dormitorio situados en Las Lagunas, Mijas Costa, una de las zonas más dinámicas y prometedoras de la Costa del Sol. Esta ubicación ofrece el equilibrio perfecto entre la tranquilidad residencial y las comodidades urbanas, con todos los servicios esenciales a solo unos minutos. Los residentes se benefician de la proximidad a centros comerciales, colegios, centros de salud, instalaciones deportivas y una amplia selección de restaurantes.
Diseño inteligente y espacios funcionales
Diseñados pensando en la vida contemporánea, estos apartamentos ofrecen distribuciones diáfanas que maximizan tanto el espacio como el confort. Los luminosos interiores cuentan con materiales naturales y tonos cálidos, creando un ambiente acogedor y agradable. El salón, la cocina y el dormitorio se fusionan en un diseño armonioso y fluido, con la terraza como prolongación natural del espacio interior, ideal para disfrutar de la luz mediterránea y de la vida al aire libre durante todo el año.
Elija entre plantas bajas o intermedias con terrazas, o áticos con amplias terrazas privadas perfectas para tomar el sol o recibir invitados.
Cada apartamento incluye:
Cocina totalmente equipada con electrodomésticos
Sistema de aire acondicionado por conductos
Una plaza de aparcamiento privada incluida
Servicios premium para un estilo de vida equilibrado
La promoción se construye en torno a una piscina comunitaria central con un bar chill-out de estilo tropical, que ofrece el entorno perfecto para relajarse y socializar. También hay una zona de barbacoa para reuniones con familiares y amigos. Los residentes también disfrutarán de acceso a un gimnasio totalmente equipado, que les permitirá llevar un estilo de vida saludable y activo sin salir de casa.
Para profesionales o estudiantes, un espacio de coworking ofrece un entorno moderno y práctico para el teletrabajo o el estudio, reforzando el compromiso con un estilo de vida en el que conviven el confort, el ocio y la productividad.
Distancias clave:
Playas de Mijas Costa: 2 km
Centro comercial Miramar: 1 km
Centro de Fuengirola: 4 km
Club de Golf Chaparral: 5 km
Aeropuerto de Málaga-Costa del Sol: 25 km
Marbella: 25 km
Invierta en el corazón de la Costa del Sol
Este proyecto residencial representa una oportunidad única para compradores primerizos, inversores o jubilados que buscan una comunidad bien comunicada y dinámica, con excelentes servicios y una gran relación calidad-precio. Ya sea como vivienda habitual o como inversión para alquilar, estos modernos apartamentos en Mijas Costa están diseñados para adaptarse al estilo de vida actual.
Póngase en contacto con nosotros hoy mismo y asegúrese su lugar en una de las zonas más prometedoras de la Costa del Sol.
425
- ayer
- 54 m2
- 6.831,48 €/m2
- 1
- 1
Global Spain
Contactar
Compartir
Tu opinión









