Villa en venta en Mijas zona Las Farolas
Datos básicos
- SP-72381
- 1.675.000 €
- 344 m2(4.869 €/m2)
- Málaga
- Mijas
- Las Farolas
Distribución e instalaciones
- 4
- 3
Varios
- Sí
Certificado energético
- B
Detalles
1.675.000 €
Exclusivas villas nuevas en venta en Las Farolas, Mijas Costa
Ubicación privilegiada junto al mar en la Costa del Sol
Descubra esta nueva promoción de 7 villas de lujo situadas en la prestigiosa y consolidada urbanización Las Farolas, entre Fuengirola y La Cala de Mijas. A solo 100 metros de la playa, estas excepcionales viviendas disfrutan de vistas parciales al mar y a la montaña y de un fácil acceso directo desde la carretera costera N-340 (A7). La zona es conocida por su tranquilidad, su proximidad al Mediterráneo y sus excelentes conexiones con Málaga, Marbella y el aeropuerto.
Diseño elegante y calidad de construcción superior
Construido por un promotor con amplia experiencia en la Costa del Sol, este proyecto refleja los más altos estándares de calidad, seguridad y diseño moderno. Cada villa combina el encanto mediterráneo con la arquitectura contemporánea para ofrecer un espacio vital luminoso, funcional y elegante.
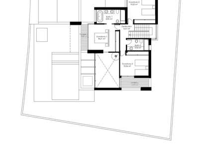
Amplia distribución en tres niveles
Cada villa se distribuye en tres plantas, ofreciendo generosos espacios interiores y exteriores:
Sótano: garaje para dos coches, sala técnica y lavandería.
Planta principal: amplio salón-comedor con cocina, un dormitorio o despacho y un baño. La zona de estar se abre a una amplia terraza con piscina privada y jardín.
Planta superior: dormitorios adicionales, incluida la suite principal con bañera independiente y acceso a terrazas privadas, algunas con vistas al mar.
Acabados de lujo y comodidad moderna
Todas las villas están equipadas con materiales de primera calidad y la última tecnología, incluyendo:
Electrodomésticos de cocina Bosch totalmente equipados
Persianas motorizadas en todos los dormitorios
Calefacción por suelo radiante mediante sistema aerotérmico y aire acondicionado por conductos.
Domótica inteligente para controlar persianas, iluminación y climatización
Jardines con sistema de riego automático
Distancias a los principales puntos de interés:
Playa: 100 m
La Cala de Mijas: 3 km
Centro de Fuengirola: 6 km
Marbella: 22 km
Aeropuerto Internacional de Málaga: 30 km
Campo de golf más cercano (Chaparral Golf): 2 km
Centro de Málaga: 40 km
Un estilo de vida de confort y prestigio
Estas villas en Las Farolas ofrecen una combinación inigualable de privacidad, lujo y proximidad al mar, lo que las hace ideales como residencia permanente, casa de vacaciones o inversión en la Costa del Sol.
Póngase en contacto con nosotros hoy mismo para concertar una visita y descubrir la villa de sus sueños en Mijas Costa.
- hace 19 días
- 344 m2
- 4.869,19 €/m2
- 4
- 3
Global Spain
Contactar
Compartir
Tu opinión






























