Villa en venta en Mijas zona La Cala
Datos básicos
- SP-30359
- 738.000 €
- 155 m2(4.761 €/m2)
- Málaga
- Mijas
- La Cala
Distribución e instalaciones
- 3
- 2
Varios
- Sí
Certificado energético
- B
Detalles
738.000 €
Casas adosadas y casas adosadas en esquina de nueva construcción en La Cala de Mijas
Exclusivo complejo residencial cerrado en la Costa del Sol
Este moderno complejo residencial cerrado está idealmente situado en una de las zonas más cotizadas de la Costa del Sol, con excelentes conexiones con la autopista A 7 Costa del Sol y rápido acceso a la autopista de peaje AP 7. La urbanización ofrece privacidad, seguridad y comodidad, lo que la convierte en una opción ideal tanto para vivir como para pasar las vacaciones. Su ubicación estratégica sitúa a los residentes cerca de Marbella, Puerto Banús y Málaga, al tiempo que disfrutan de un entorno residencial tranquilo cerca del mar.
Viviendas modernas con amplias distribuciones y vistas al mar
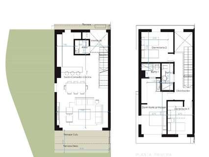
El proyecto consta de 68 adosados y casas pareadas en esquina de alta calidad con 3 o 4 dormitorios. Las propiedades han sido cuidadosamente diseñadas para ofrecer distribuciones equilibradas, zonas de estar diáfanas y amplios espacios exteriores, como terrazas, jardines privados o soláriums. Algunas viviendas incluyen un sótano con aparcamiento privado, trastero o zona de estar, mientras que otras ofrecen un cómodo aparcamiento en superficie. Todas las viviendas se benefician de una orientación sur y muchas disfrutan de impresionantes vistas abiertas al mar Mediterráneo.
Acabados de alta calidad y comodidad contemporánea
Cada vivienda está equipada con especificaciones de primera calidad para garantizar el confort y la vida moderna. Las cocinas están completamente amuebladas con electrodomésticos integrados y un diseño limpio y contemporáneo. Los baños incluyen tocadores, espejos, mamparas de ducha y calefacción por suelo radiante. Las propiedades también cuentan con una puerta de entrada de seguridad reforzada y un completo sistema de aire acondicionado por conductos instalado en toda la vivienda. Algunas viviendas incluyen una minipiscina privada, lo que le permitirá disfrutar de los meses de verano desde la comodidad de su propia casa.
Zonas comunes estilo resort
Los residentes pueden disfrutar de una excepcional gama de instalaciones comunes diseñadas para el relax y el bienestar. La urbanización incluye jardines paisajísticos, una gran piscina comunitaria, gimnasio, sauna, spa y una zona chill out, creando un ambiente tipo resort ideal para socializar o relajarse durante todo el año.
Ubicación privilegiada cerca de la playa, el golf y los servicios
El complejo se encuentra a menos de 2 km de la playa y a 7 minutos a pie de servicios esenciales como supermercados, restaurantes, tiendas, centro de salud, instalaciones de ocio y varios campos de golf de renombre.
Distancias clave a puntos de interés
Centro histórico de Marbella: 15 km
Puerto deportivo de Puerto Banús: 20 km
Aeropuerto internacional de Málaga: 45 km
Estación de tren María Zambrano: 30 km
Campos de golf más cercanos: 2 km
Su nuevo hogar en la Costa del Sol le espera
Descubra la combinación perfecta de diseño moderno, excelente ubicación y alta calidad de vida. Póngase en contacto con nosotros hoy mismo para concertar una visita y asegurarse su nueva vivienda cerca de Marbella y la costa mediterránea.
425
- hace 5 días
- 155 m2
- 4.761,29 €/m2
- 3
- 2
Global Spain
Contactar
Compartir
Tu opinión
















