Casa en venta en Cartagena zona La Azohía
Datos básicos
- M-33896
- 255.000 €
- 79 m2(3.228 €/m2)
- Murcia
- Cartagena
- La Azohía
Distribución e instalaciones
- 2
- 3
Certificado energético
- B
Detalles
255.000 €
Casas adosadas de nueva construcción a 50 m de la playa en La Azohía, Cartagena
Exclusivas viviendas costeras a pocos pasos del mar Mediterráneo
Descubra esta promoción de nueva construcción muy limitada de solo dos modernas casas adosadas situadas a solo 50 metros de la playa en La Azohía, Cartagena. Este enclave costero privilegiado de la Costa Cálida es conocido por sus aguas cristalinas, su ambiente relajado y su entorno natural virgen. Ideal para aquellos que buscan tranquilidad junto al mar, La Azohía ofrece un auténtico estilo de vida mediterráneo con pequeñas calas, restaurantes junto al mar y hermosos paseos costeros.
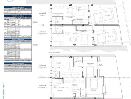
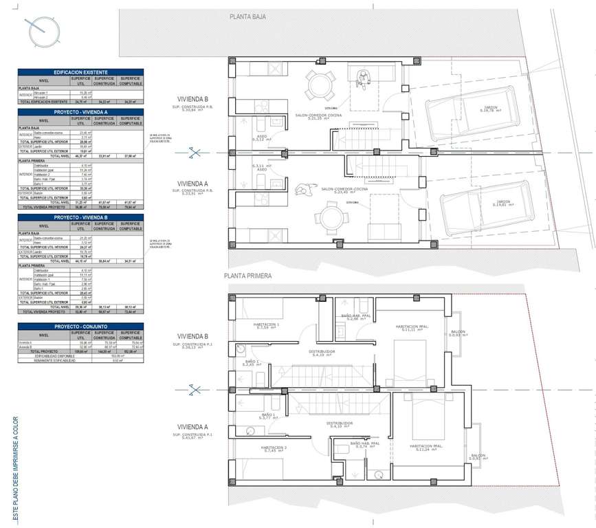
Distribución moderna con vistas al mar y solárium privado
Cada casa adosada se distribuye en dos plantas, más un solárium privado en la azotea con vistas abiertas al mar Mediterráneo. La planta baja cuenta con un luminoso salón-comedor diáfano con cocina, diseñado para maximizar la luz natural y el confort. Esta planta también incluye un cuarto de baño completo y acceso directo a un jardín privado. La zona del jardín ofrece flexibilidad, ya que puede utilizarse como aparcamiento fuera de la vía pública o mejorarse con una piscina privada con un coste adicional.
En la primera planta, la zona de dormitorios incluye un amplio dormitorio principal con baño en suite, un segundo dormitorio individual y un cuarto de baño completo adicional. La planta superior está dedicada a un solárium privado, un espacio excepcional para disfrutar de las vistas al mar, tomar el sol durante todo el año o crear una zona de descanso para la vida al aire libre.
Acabados de alta calidad y características de confort
Estas casas adosadas de nueva construcción están construidas con materiales y acabados de alta calidad para garantizar la durabilidad, el confort y el estilo moderno. Las características incluyen armarios empotrados en los dormitorios, preinstalación de aire acondicionado por conductos y preinstalación de la cocina, lo que permite a los compradores personalizar el espacio a su gusto. El diseño contemporáneo, combinado con una distribución funcional, hace que estas viviendas sean ideales como residencia permanente, casa de vacaciones o propiedad de inversión.
Ubicación privilegiada en La Azohía, Cartagena
La Azohía es un encantador pueblo costero dentro del municipio de Cartagena, apreciado por su entorno tranquilo, su zona marina protegida y su proximidad a la naturaleza. La zona ofrece servicios básicos, restaurantes locales y fácil acceso a ciudades y servicios más grandes, al tiempo que mantiene su relajado encanto costero.
Distancias clave a puntos de interés
Playa de La Azohía: 50 m
Centro de Cartagena: 25 km
Puerto deportivo de Puerto de Mazarrón: 20 km
La Manga Club Golf Resort: 35 km
Aeropuerto de Murcia Corvera: 45 km
Aeropuerto de Alicante: 120 km
Estilo de vida mediterráneo junto al mar
Vivir en La Azohía significa disfrutar del sol, las vistas al mar y un ritmo de vida más pausado durante todo el año. La combinación de la proximidad a la playa, el diseño moderno y la disponibilidad limitada hacen de esta promoción una oportunidad única en la Costa Cálida.
Póngase en contacto con nosotros hoy mismo
No pierda la oportunidad de adquirir una casa adosada de nueva construcción a pocos pasos del mar en La Azohía. Póngase en contacto con nosotros ahora para obtener más información o concertar una visita y asegurarse una de estas exclusivas viviendas costeras.
- 1/01/2026
- 79 m2
- 3.227,85 €/m2
- 2
- 3
Medimar Eiendom
Contactar
Compartir
Tu opinión








