Villa en venta en Cartagena zona La Manga Club
Datos básicos
- 84826
- 840.000 €
- 248 m2(3.387 €/m2)
- Murcia
- Cartagena
- La Manga Club
Distribución e instalaciones
- 4
- 3
Varios
- Sí
Certificado energético
Detalles
840.000 €
Villas de nueva construcción en venta en La Manga Club - Vida de lujo en un complejo de prestigio
Villas modernas y espaciosas en una ubicación céntrica
Descubra las impresionantes villas de nueva construcción a la venta en La Manga Club, diseñadas cuidadosamente para satisfacer las necesidades de la vida moderna. Estas lujosas propiedades ofrecen distribuciones prácticas, acabados de alta gama y acceso a todas las comodidades de este complejo de renombre mundial.
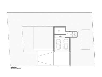
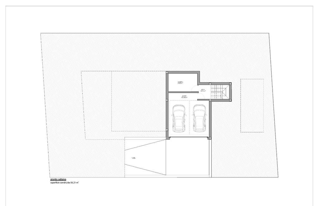
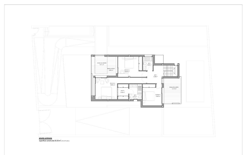
Situada en el corazón de La Manga Club, esta exclusiva urbanización cuenta con 29 amplias parcelas de entre 500 m² y 746 m². Los compradores pueden elegir villas de 2, 3 ó 4 dormitorios, con piscina privada, jardines y aparcamiento vigilado. Tanto si busca una casa de vacaciones como una residencia permanente, estas villas ofrecen una combinación perfecta de confort, estilo y comodidad.
Características de primera y acabados de alta calidad
Todas las villas están construidas con los más altos estándares, incorporando elementos de diseño moderno y tecnología avanzada para el máximo confort. Las características clave incluyen:
Carpintería de aluminio de alto rendimiento con rotura de puente térmico (CORTIZO o similar).
Doble acristalamiento aislante para mayor eficiencia energética y confort.
Sistemas domóticos para controlar la iluminación, la electricidad y la electrónica.
Sistemas de aerotermia para calefacción, refrigeración y agua caliente sanitaria.
Ventilación de alta eficiencia con sistemas mecánicos controlados.
Elementos de seguridad, incluidos sistemas de alarma y videovigilancia preinstalados.
Ubicación exclusiva - La Manga Club Resort
La Manga Club es uno de los principales complejos deportivos y de ocio de Europa, que ofrece un estilo de vida incomparable en un impresionante entorno mediterráneo. Con una extensión de 560 hectáreas, el complejo está rodeado de parques naturales y playas vírgenes que ofrecen un entorno impresionante y sol todo el año.
Los residentes disfrutan de acceso a servicios de primera clase, entre los que se incluyen
Tres campos de golf de 18 hoyos
El Racquets Club, con 28 pistas de tenis y pádel
Instalaciones de fitness y spa en el Grand Hyatt La Manga Club Golf & Spa
Acceso privado a la playa y excelentes opciones gastronómicas
Campos de fútbol FIFA para los amantes del deporte
Excelente conectividad y atracciones cercanas
La Manga Club goza de una ubicación perfecta con excelentes conexiones de transporte a las principales ciudades europeas:
Aeropuerto de Corvera - 50 km (aprox. 35 minutos en coche)
Aeropuerto de Alicante - 100 km (aprox. 1 hora en coche)
Otros puntos de interés cercanos incluyen:
Playas - A menos de 3 km de la costa mediterránea.
Campos de golf - En las instalaciones hay tres campos de campeonato
Centros comerciales - Situados a 10-15 km de distancia para todas sus necesidades comerciales
Puertos deportivos - Accesibles a menos de 20 km para los amantes de la vela y los deportes acuáticos
El lugar ideal para una vida de lujo
La Manga Club ofrece una comunidad vibrante y segura, ideal para familias, jubilados y entusiastas del golf. Disfrute de un estilo de vida tranquilo y privado con acceso a instalaciones de primera clase, todo ello rodeado de belleza natural y comodidades modernas.
Experimente la vida de lujo en su máxima expresión con estas villas de nueva construcción en La Manga Club. No pierda esta oportunidad de poseer una vivienda en uno de los complejos turísticos más prestigiosos de Europa.
Póngase en contacto con nosotros ahora para obtener más detalles o para programar una visita.
Villas modernas y espaciosas en una ubicación céntrica
Descubra las impresionantes villas de nueva construcción a la venta en La Manga Club, diseñadas cuidadosamente para satisfacer las necesidades de la vida moderna. Estas lujosas propiedades ofrecen distribuciones prácticas, acabados de alta gama y acceso a todas las comodidades de este complejo de renombre mundial.
Situada en el corazón de La Manga Club, esta exclusiva urbanización cuenta con 29 amplias parcelas de entre 500 m² y 746 m². Los compradores pueden elegir villas de 2, 3 ó 4 dormitorios, con piscina privada, jardines y aparcamiento vigilado. Tanto si busca una casa de vacaciones como una residencia permanente, estas villas ofrecen una combinación perfecta de confort, estilo y comodidad.
Características de primera y acabados de alta calidad
Todas las villas están construidas con los más altos estándares, incorporando elementos de diseño moderno y tecnología avanzada para el máximo confort. Las características clave incluyen:
Carpintería de aluminio de alto rendimiento con rotura de puente térmico (CORTIZO o similar).
Doble acristalamiento aislante para mayor eficiencia energética y confort.
Sistemas domóticos para controlar la iluminación, la electricidad y la electrónica.
Sistemas de aerotermia para calefacción, refrigeración y agua caliente sanitaria.
Ventilación de alta eficiencia con sistemas mecánicos controlados.
Elementos de seguridad, incluidos sistemas de alarma y videovigilancia preinstalados.
Ubicación exclusiva - La Manga Club Resort
La Manga Club es uno de los principales complejos deportivos y de ocio de Europa, que ofrece un estilo de vida incomparable en un impresionante entorno mediterráneo. Con una extensión de 560 hectáreas, el complejo está rodeado de parques naturales y playas vírgenes que ofrecen un entorno impresionante y sol todo el año.
Los residentes disfrutan de acceso a servicios de primera clase, entre los que se incluyen
Tres campos de golf de 18 hoyos
El Racquets Club, con 28 pistas de tenis y pádel
Instalaciones de fitness y spa en el Grand Hyatt La Manga Club Golf & Spa
Acceso privado a la playa y excelentes opciones gastronómicas
Campos de fútbol FIFA para los amantes del deporte
Excelente conectividad y atracciones cercanas
La Manga Club goza de una ubicación perfecta con excelentes conexiones de transporte a las principales ciudades europeas:
Aeropuerto de Corvera - 50 km (aprox. 35 minutos en coche)
Aeropuerto de Alicante - 100 km (aprox. 1 hora en coche)
Otros puntos de interés cercanos incluyen:
Playas - A menos de 3 km de la costa mediterránea.
Campos de golf - En las instalaciones hay tres campos de campeonato
Centros comerciales - Situados a 10-15 km de distancia para todas sus necesidades comerciales
Puertos deportivos - Accesibles a menos de 20 km para los amantes de la vela y los deportes acuáticos
El lugar ideal para una vida de lujo
La Manga Club ofrece una comunidad vibrante y segura, ideal para familias, jubilados y entusiastas del golf. Disfrute de un estilo de vida tranquilo y privado con acceso a instalaciones de primera clase, todo ello rodeado de belleza natural y comodidades modernas.
Experimente la vida de lujo en su máxima expresión con estas villas de nueva construcción en La Manga Club. No pierda esta oportunidad de poseer una vivienda en uno de los complejos turísticos más prestigiosos de Europa.
Póngase en contacto con nosotros ahora para obtener más detalles o para programar una visita.
- 30/10/2025
- 248 m2
- 3.387,1 €/m2
- 4
- 3
Contactar
Compartir
Tu opinión



























