Villa en venta en Fuente Álamo de Murcia zona Las Palas
Datos básicos
- REDSP-52696
- 236.000 €
- 175 m2(1.349 €/m2)
- Murcia
- Fuente Álamo de Murcia
- Las Palas
Distribución e instalaciones
- 2
- 1
Certificado energético
Detalles
236.000 €
PAREADO LLAVE EN MANO EN FUENTE ALAMO, MURCIA
Residencial de adosados, villas independientes y pareados en Fuente Álamo, Murcia.
Hay siete modelos diferentes de casas para elegir, diseñados para adaptarse al gusto de todos.
Diseños rústicos combinados con materiales de primera calidad y un enfoque en el espacio de vida cómodo hay algo para todos.
Los residentes de esta comunidad privada de hermosas y amplias casas también podrán disfrutar de sus propios jardines y piscinas comunitarias.
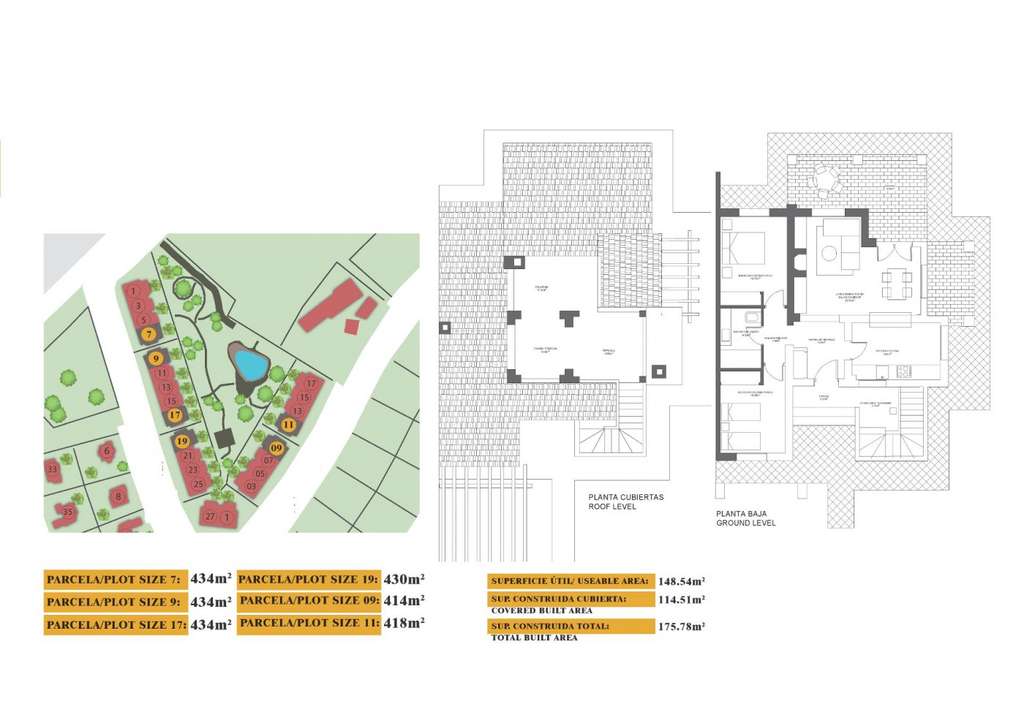
Este pareado de diseño inusual tiene 2 dormitorios y 1 baño, cocina independiente, salón con puertas de patio que dan acceso al porche cubierto y a la terraza semicubierta de la azotea.
Tiene la opción de una piscina privada con un coste adicional.
Fuente Álamo de Murcia es una localidad y municipio de la Región de Murcia, en el sur de España. Está situada a 22 km al noroeste de Cartagena y a 35 km al suroeste de Murcia.
La ciudad se encuentra en la cuenca del Mar Menor, rodeada por las sierras de Algarrobo, Los Gómez, Los Victorias y el Carrascoy.
El agua de estas montañas fluye hacia la Rambla de Fuente Álamo y luego hacia el Mar Menor.
Fuente Álamo se encuentra a 30 minutos del aeropuerto de Murcia - Corvera.
- 30/10/2025
- 175 m2
- 1.348,57 €/m2
- 2
- 1
Contactar
Compartir
Tu opinión














































