Villa en venta en Lorca zona Purias
Datos básicos
- PS-34076
- 375.000 €
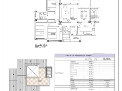
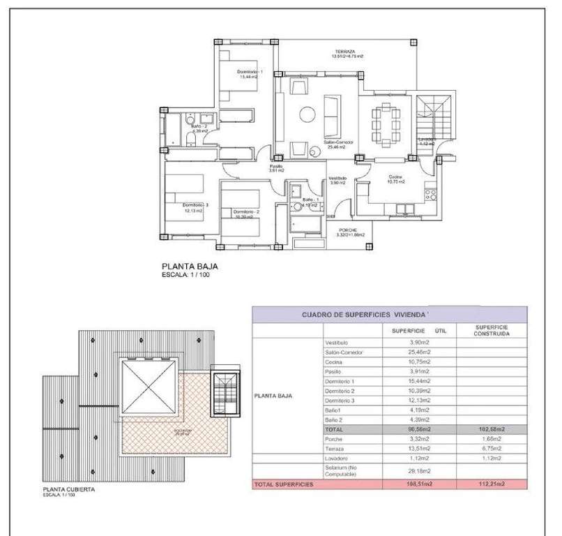
- 112 m2(3.348 €/m2)
- Murcia
- Lorca
- Purias
Distribución e instalaciones
- 3
- 2
Certificado energético
- B
Detalles
375.000 €
Villas de nueva construcción en amplias parcelas de más de 500 m² en Lorca
Nuevas villas de estilo mediterráneo en una zona residencial segura y tranquila
Descubra una exclusiva promoción de chalets independientes en parcelas de más de 500 m², estratégicamente situada en el sureste de España. Estas viviendas ofrecen la combinación perfecta de tranquilidad en el campo, proximidad a la costa y excelentes conexiones por carretera con las principales ciudades y aeropuertos.
Enclavada en un entorno privilegiado de la Costa Cálida, esta urbanización goza de sol todo el año, lo que la convierte en un lugar ideal para disfrutar del estilo de vida mediterráneo.
Viviendas amplias y luminosas con jardín privado
Diseñadas para ofrecer el máximo confort y relajación, estas villas cuentan con zonas de estar de planta abierta con grandes ventanales, que conectan a la perfección los espacios interiores y exteriores. El generoso jardín privado ofrece el escenario perfecto para el ocio al aire libre, con la opción de añadir una piscina y personalizar su paisajismo.
Elija entre tres modelos de villa, disponibles en una o dos plantas, con 3 ó 4 dormitorios y 2 ó 3 baños. Cada casa incluye un solarium privado, lo que permite a los residentes aprovechar al máximo la belleza del entorno.
Una comunidad segura y bien equipada
Esta urbanización cerrada ofrece un servicio de seguridad 24 horas con acceso controlado, lo que garantiza la tranquilidad de todos los residentes. Diseñada pensando en una vida verde, la comunidad incluye:
Dos grandes parques ajardinados para relajarse y realizar actividades en familia.
Zonas deportivas y de juego dedicadas para promover un estilo de vida activo.
Calles arboladas y un carril bici de 3,5 km que recorre el perímetro de la urbanización.
Una zona comercial en la entrada, que contará con restaurante, supermercado, gasolinera y otros servicios esenciales.
Acabados de alta calidad para el máximo confort
Cada villa está construida con materiales de primera calidad y modernas instalaciones, entre las que se incluyen:
Preinstalación de aire acondicionado por conductos
Preinstalación de gas natural
Puerta de entrada de seguridad
Ventanas Climalit de doble acristalamiento
Comunidad totalmente vallada con vigilancia 24 horas
Ubicación privilegiada - Cerca de la costa y de los servicios de la ciudad
Situadas en una zona de reciente desarrollo del municipio de Lorca, estas villas ofrecen un entorno natural y tranquilo a la vez que mantienen un fácil acceso a lugares clave:
Centro de Lorca - 10 km
Playas de Águilas - 20 km
Aeropuerto Murcia-Corvera - 70 km
Aeropuerto de Alicante - 130 km
Centros comerciales y restaurantes - 10 km
Encuentre su casa ideal en Costa Cálida
Con 50 viviendas ya terminadas y un total de 320 previstas, esta es su oportunidad de asegurarse una nueva villa de estilo mediterráneo en una próspera nueva comunidad. Ya sea para residencia permanente, casa de vacaciones o inversión, estas propiedades ofrecen un valor excelente en una ubicación privilegiada.
Póngase en contacto con nosotros hoy mismo para obtener más información y concertar una visita.
- hace 4 días
- 112 m2
- 3.348,21 €/m2
- 3
- 2
Global Spain
Contactar
Compartir
Tu opinión





























