Casa en venta en Los Alcazares zona Serena Golf
Datos básicos
- NBZH-70364
- 357.000 €
- 135 m2(2.644 €/m2)
- Murcia
- Los Alcazares
- Serena Golf
Distribución e instalaciones
- 3
- 2
Varios
- Sí
Certificado energético
Detalles
357.000 €
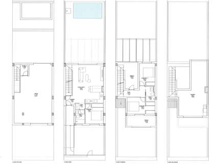
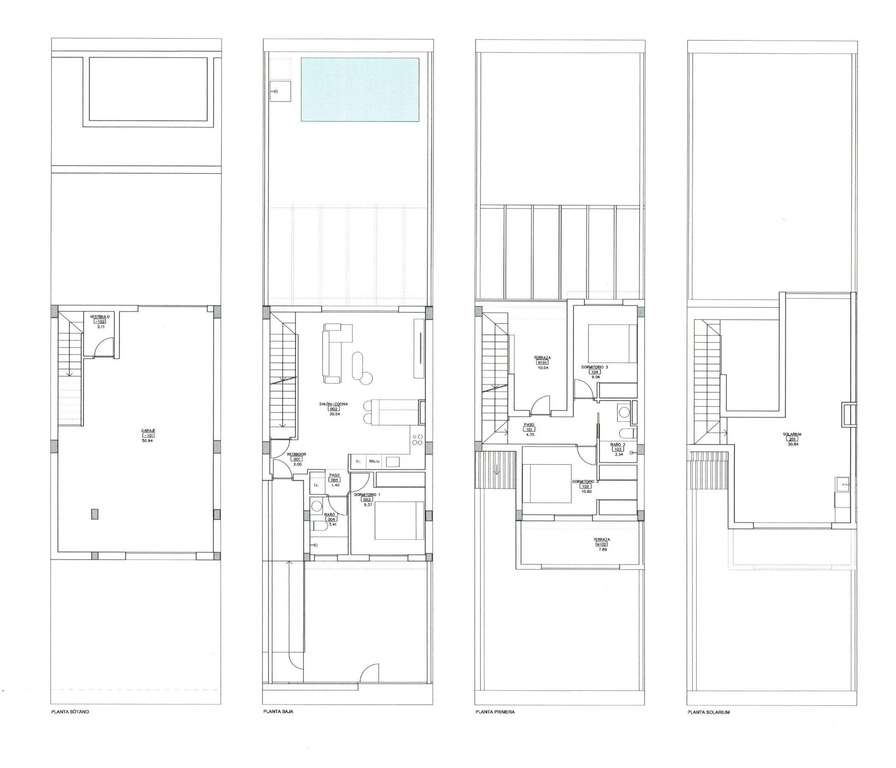
Casas adosadas de nueva construcción en primera línea de La Serena Golf en Los Alcázares #13; #13;Ubicación privilegiada junto al campo de golf y el mar #13;Descubra una exclusiva urbanización de 31 casas adosadas de nueva construcción situadas en primera línea de La Serena Golf en Los Alcázares, a solo 600 m del Mar Menor. Situada en el corazón de la Costa Cálida, esta privilegiada ubicación combina golf, playa y estilo de vida mediterráneo. Con todos los servicios cerca y un excelente acceso por carretera, es el lugar ideal tanto para vacaciones como para vivir todo el año. #13; #13;Viviendas modernas con piscina privada y solárium en la azotea #13;Cada vivienda cuenta con un elegante diseño contemporáneo y espacios interiores luminosos. Las viviendas están distribuidas en tres niveles más un solárium en la azotea, lo que ofrece el máximo confort y privacidad: #13;Sótano con garaje privado para 2 coches y acceso a un patio #13;Planta baja con salón y cocina diáfanos que dan a un jardín y una piscina privada, 1 dormitorio y 1 baño #13;Primera planta con 2 dormitorios, 1 baño y 2 terrazas #13;Solárium en la azotea con cocina de verano, ideal para relajarse y disfrutar de las vistas panorámicas #13; #13;La orientación este y oeste garantiza una excelente luz natural y la posibilidad de disfrutar del aire libre durante todo el día. #13; #13;Acabados de alta calidad y comodidad #13;Estas viviendas están construidas con los más altos estándares de calidad y ofrecen características premium, entre las que se incluyen: #13;Piscina privada #13;Garaje subterráneo para 2 coches con puerta motorizada #13;Sistema de agua caliente aerotérmica #13;Aire acondicionado por conductos totalmente instalado #13;Cocina amueblada y equipada #13;Baños totalmente equipados con muebles, espejos y mamparas de ducha #13;Puerta de entrada de seguridad #13; #13;Viva entre el mar y la calle #13;Situada en medio de exuberantes paisajes mediterráneos, esta exclusiva comunidad ofrece una vida tranquila junto al campo de golf Serena, un reconocido campo de 18 hoyos rodeado de naturaleza y tranquilos lagos. Las cálidas y poco profundas aguas del Mar Menor son perfectas para nadar y disfrutar de deportes acuáticos como la vela, el paddle surf y el kayak durante todo el año. #13; #13;Distancias clave: #13;Playa (Mar Menor): 600 m #13;La Serena Golf: junto al complejo #13;Centro de Los Alcázares: 2 km #13;Cartagena: 22 km #13;Ciudad de Murcia: 40 km #13;Aeropuerto de Murcia: 30 km #13;Aeropuerto de Alicante: 90 km #13; #13;Asegúrese su estilo de vida mediterráneo #13;Tanto si busca una residencia permanente, una casa de vacaciones o una inversión rentable, estas viviendas ofrecen lujo, comodidad y un estilo de vida costero superior. #13;Póngase en contacto con nosotros hoy mismo para concertar una visita y asegurarse su nueva vivienda en Los Alcázares. #13;
- 3/11/2025
- 135 m2
- 2.644,44 €/m2
- 3
- 2
Zebra Homes
Contactar
Compartir
Tu opinión





























