Casa en venta en Los Alcazares zona Serena Golf
Datos básicos
- M-28030
- 350.000 € (antes 357.000 €)
- 135 m2(2.593 €/m2)
- Murcia
- Los Alcazares
- Serena Golf
Distribución e instalaciones
- 3
- 2
Varios
- Sí
Certificado energético
- B
Detalles
350.000 € 357.000 €
Casas adosadas de nueva construcción en primera línea de La Serena Golf en Los Alcázares
Ubicación privilegiada junto al campo de golf y el mar
Descubra una exclusiva urbanización de 31 casas adosadas de nueva construcción situadas en primera línea de La Serena Golf en Los Alcázares, a solo 600 m del Mar Menor. Situada en el corazón de la Costa Cálida, esta privilegiada ubicación combina golf, playa y estilo de vida mediterráneo. Con todos los servicios cerca y un excelente acceso por carretera, es el lugar ideal tanto para vacaciones como para vivir todo el año.
Viviendas modernas con piscina privada y solárium en la azotea
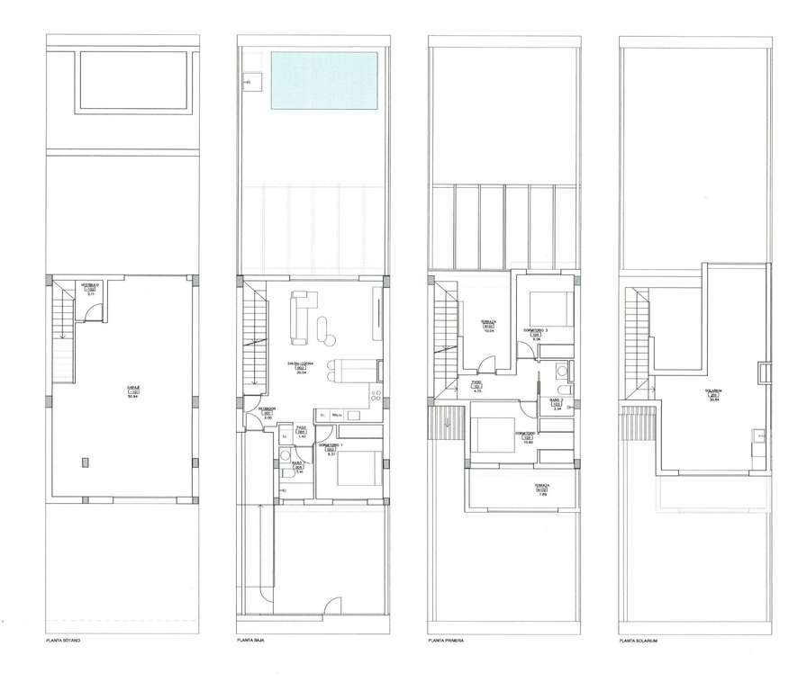
Cada vivienda cuenta con un elegante diseño contemporáneo y espacios interiores luminosos. Las viviendas están distribuidas en tres niveles más un solárium en la azotea, lo que ofrece el máximo confort y privacidad:
Sótano con garaje privado para 2 coches y acceso a un patio
Planta baja con salón y cocina diáfanos que dan a un jardín y una piscina privada, 1 dormitorio y 1 baño
Primera planta con 2 dormitorios, 1 baño y 2 terrazas
Solárium en la azotea con cocina de verano, ideal para relajarse y disfrutar de las vistas panorámicas
La orientación este y oeste garantiza una excelente luz natural y la posibilidad de disfrutar del aire libre durante todo el día.
Acabados de alta calidad y comodidad
Estas viviendas están construidas con los más altos estándares de calidad y ofrecen características premium, entre las que se incluyen:
Piscina privada
Garaje subterráneo para 2 coches con puerta motorizada
Sistema de agua caliente aerotérmica
Aire acondicionado por conductos totalmente instalado
Cocina amueblada y equipada
Baños totalmente equipados con muebles, espejos y mamparas de ducha
Puerta de entrada de seguridad
Viva entre el mar y la calle
Situada en medio de exuberantes paisajes mediterráneos, esta exclusiva comunidad ofrece una vida tranquila junto al campo de golf Serena, un reconocido campo de 18 hoyos rodeado de naturaleza y tranquilos lagos. Las cálidas y poco profundas aguas del Mar Menor son perfectas para nadar y disfrutar de deportes acuáticos como la vela, el paddle surf y el kayak durante todo el año.
Distancias clave:
Playa (Mar Menor): 600 m
La Serena Golf: junto al complejo
Centro de Los Alcázares: 2 km
Cartagena: 22 km
Ciudad de Murcia: 40 km
Aeropuerto de Murcia: 30 km
Aeropuerto de Alicante: 90 km
Asegúrese su estilo de vida mediterráneo
Tanto si busca una residencia permanente, una casa de vacaciones o una inversión rentable, estas viviendas ofrecen lujo, comodidad y un estilo de vida costero superior.
Póngase en contacto con nosotros hoy mismo para concertar una visita y asegurarse su nueva vivienda en Los Alcázares.
- hace 19 días
- 135 m2
- 2.592,59 €/m2
- 2%
- 3
- 2
Medimar Eiendom
Contactar
Compartir
Tu opinión





























