Casa en venta en Los Alcazares zona Serena Golf
Datos básicos
- RS-57140
- 357.000 €
- 135 m2(2.644 €/m2)
- Murcia
- Los Alcazares
- Serena Golf
Distribución e instalaciones
- 3
- 2
Varios
- Sí
Certificado energético
Detalles
357.000 €
Casas adosadas de nueva construcción en primera línea de La Serena Golf en Los Alcázares
Ubicación privilegiada junto al campo de golf y el marDescubra una exclusiva urbanización de 31 casas adosadas de nueva construcción situadas en primera línea de La Serena Golf en Los Alcázares, a solo 600 m del Mar Menor. Situada en el corazón de la Costa Cálida, esta privilegiada ubicación combina golf, playa y estilo de vida mediterráneo. Con todos los servicios cerca y un excelente acceso por carretera, es el lugar ideal tanto para vacaciones como para vivir todo el año.
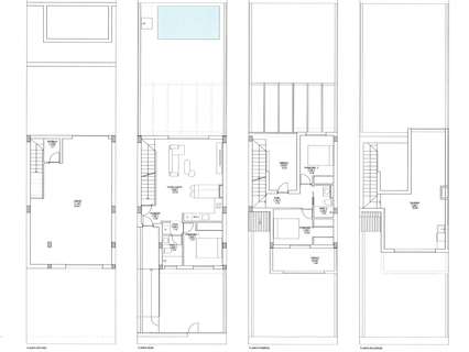
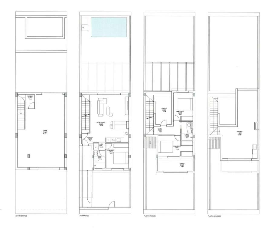
Viviendas modernas con piscina privada y solárium en la azoteaCada vivienda cuenta con un elegante diseño contemporáneo y espacios interiores luminosos. Las viviendas están distribuidas en tres niveles más un solárium en la azotea, lo que ofrece el máximo confort y privacidad:Sótano con garaje privado para 2 coches y acceso a un patioPlanta baja con salón y cocina diáfanos que dan a un jardín y una piscina privada, 1 dormitorio y 1 bañoPrimera planta con 2 dormitorios, 1 baño y 2 terrazasSolárium en la azotea con cocina de verano, ideal para relajarse y disfrutar de las vistas panorámicas
La orientación este y oeste garantiza una excelente luz natural y la posibilidad de disfrutar del aire libre durante todo el día.
Acabados de alta calidad y comodidadEstas viviendas están construidas con los más altos estándares de calidad y ofrecen características premium, entre las que se incluyen:Piscina privadaGaraje subterráneo para 2 coches con puerta motorizadaSistema de agua caliente aerotérmicaAire acondicionado por conductos totalmente instaladoCocina amueblada y equipadaBaños totalmente equipados con muebles, espejos y mamparas de duchaPuerta de entrada de seguridad
Viva entre el mar y la calleSituada en medio de exuberantes paisajes mediterráneos, esta exclusiva comunidad ofrece una vida tranquila junto al campo de golf Serena, un reconocido campo de 18 hoyos rodeado de naturaleza y tranquilos lagos. Las cálidas y poco profundas aguas del Mar Menor son perfectas para nadar y disfrutar de deportes acuáticos como la vela, el paddle surf y el kayak durante todo el año.
Distancias clave:Playa (Mar Menor): 600 mLa Serena Golf: junto al complejoCentro de Los Alcázares: 2 kmCartagena: 22 kmCiudad de Murcia: 40 kmAeropuerto de Murcia: 30 kmAeropuerto de Alicante: 90 km
Asegúrese su estilo de vida mediterráneoTanto si busca una residencia permanente, una casa de vacaciones o una inversión rentable, estas viviendas ofrecen lujo, comodidad y un estilo de vida costero superior.Póngase en contacto con nosotros hoy mismo para concertar una visita y asegurarse su nueva vivienda en Los Alcázares.
Ubicación privilegiada junto al campo de golf y el marDescubra una exclusiva urbanización de 31 casas adosadas de nueva construcción situadas en primera línea de La Serena Golf en Los Alcázares, a solo 600 m del Mar Menor. Situada en el corazón de la Costa Cálida, esta privilegiada ubicación combina golf, playa y estilo de vida mediterráneo. Con todos los servicios cerca y un excelente acceso por carretera, es el lugar ideal tanto para vacaciones como para vivir todo el año.
Viviendas modernas con piscina privada y solárium en la azoteaCada vivienda cuenta con un elegante diseño contemporáneo y espacios interiores luminosos. Las viviendas están distribuidas en tres niveles más un solárium en la azotea, lo que ofrece el máximo confort y privacidad:Sótano con garaje privado para 2 coches y acceso a un patioPlanta baja con salón y cocina diáfanos que dan a un jardín y una piscina privada, 1 dormitorio y 1 bañoPrimera planta con 2 dormitorios, 1 baño y 2 terrazasSolárium en la azotea con cocina de verano, ideal para relajarse y disfrutar de las vistas panorámicas
La orientación este y oeste garantiza una excelente luz natural y la posibilidad de disfrutar del aire libre durante todo el día.
Acabados de alta calidad y comodidadEstas viviendas están construidas con los más altos estándares de calidad y ofrecen características premium, entre las que se incluyen:Piscina privadaGaraje subterráneo para 2 coches con puerta motorizadaSistema de agua caliente aerotérmicaAire acondicionado por conductos totalmente instaladoCocina amueblada y equipadaBaños totalmente equipados con muebles, espejos y mamparas de duchaPuerta de entrada de seguridad
Viva entre el mar y la calleSituada en medio de exuberantes paisajes mediterráneos, esta exclusiva comunidad ofrece una vida tranquila junto al campo de golf Serena, un reconocido campo de 18 hoyos rodeado de naturaleza y tranquilos lagos. Las cálidas y poco profundas aguas del Mar Menor son perfectas para nadar y disfrutar de deportes acuáticos como la vela, el paddle surf y el kayak durante todo el año.
Distancias clave:Playa (Mar Menor): 600 mLa Serena Golf: junto al complejoCentro de Los Alcázares: 2 kmCartagena: 22 kmCiudad de Murcia: 40 kmAeropuerto de Murcia: 30 kmAeropuerto de Alicante: 90 km
Asegúrese su estilo de vida mediterráneoTanto si busca una residencia permanente, una casa de vacaciones o una inversión rentable, estas viviendas ofrecen lujo, comodidad y un estilo de vida costero superior.Póngase en contacto con nosotros hoy mismo para concertar una visita y asegurarse su nueva vivienda en Los Alcázares.
- 4/11/2025
- 135 m2
- 2.644,44 €/m2
- 3
- 2
Immo Toro
Contactar
Compartir
Tu opinión





























