Villa en venta en Los Alcazares zona Serena Golf
Datos básicos
- RS-26216
- 382.500 €
- 110 m2(3.477 €/m2)
- Murcia
- Los Alcazares
- Serena Golf
Distribución e instalaciones
- 3
- 2
Certificado energético
Detalles
382.500 €
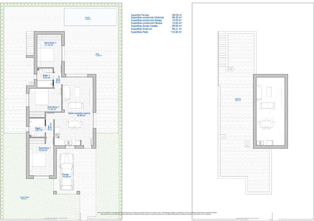
VILLAS DE OBRA NUEVA EN LOS ALCAZARES Villa de obra nueva en una generosa parcela de 350m2 en Los Alcázares. Villa con 3 dormitorios y 2 baños, cocina abierta con el salón, armarios empotrados, solárium, jardín privado con espacio de aparcamiento fuera de la carretera y espacio para una piscina. Una opción para una piscina privada a un costo adicional. Amplio salón con grandes puertas correderas a una terraza. Amplias terrazas en la parte delantera y trasera aseguran que los propietarios puedan tomar el sol durante todo el día. Estas villas cuentan con modernas cocinas equipadas con una selección de colores para los muebles de cocina y los azulejos de las paredes tanto en las cocinas como en los baños, así como en los suelos y las terrazas. Residencial de villas situado a 1 km de la playa y del pueblo de Los Alcázares, donde se pueden practicar diversos deportes acuáticos, rodeado de varios campos de golf. Ciudad de Cartagena a menos de 15 minutos en coche y a 30 minutos del aeropuerto de Murcia Corvera.
- 14/10/2025
- 110 m2
- 3.477,27 €/m2
- 3
- 2
Immo Toro
Contactar
Compartir
Tu opinión












