Villa en venta en Los Alcázares zona Playa la Atascadera
Datos básicos
- NBZH-96798
- 659.000 €
- 118 m2(5.585 €/m2)
- Murcia
- Los Alcázares
- Playa la Atascadera
Distribución e instalaciones
- 3
- 3
Varios
- Sí
Certificado energético
Detalles
659.000 €
ÚLTIMAS VILLAS DE OBRA NUEVA EN LOS ALCAZARES
Promoción de nueva construcción de 12 exclusivas villas independientes, cada una con piscina privada y solárium en la azotea, ubicada a solo 150 metros de la hermosa playa de Los Narejos y a solo 2 minutos a pie de la animada franja de Río Nalón con su gran cantidad de bares y restaurantes.
Casas de autor, construidas con los más altos estándares en una de las mejores ubicaciones del Mar Menor.
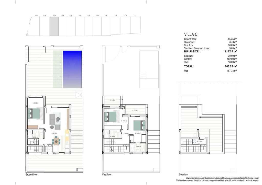
Estas últimas villas de nueva construcción en Los Alcázares tienen más de 120m2 de espacio habitable más jardines privados de más de 100m2, con estacionamiento fuera de la carretera disponible en la parcela y una piscina privada de 6m x 3m con plataforma para tomar el sol incluida. Todos los electrodomésticos incluidos: frigorífico-congelador, horno, microondas, placa vitrocerámica, campana extractora, lavavajillas, lavadora y mini-nevera en la cocina de verano. Preinstalación de aire acondicionado por conductos en toda la vivienda. Iluminación interior y exterior, excepto luces ornamentales. Persianas motorizadas. En la planta baja se encuentra un luminoso salón-comedor con cocina abierta, un baño y una habitación adicional en la planta baja de 13m2 que podría usarse como tercer dormitorio, comedor independiente o como garaje; esta habitación tendrá puertas de vidrio panorámicas que se abren hacia afuera y que permitirán estacionar un automóvil en el interior si es necesario (*aunque este espacio interno se puede usar para lo que requieran los propietarios y se preparará como dormitorio, se incluirá como garaje en las escrituras). También hay un trastero exterior y una bomba de piscina en el patio trasero. En el primer piso hay un dormitorio principal con baño en suite, dos armarios empotrados y acceso directo a un balcón, además de otro dormitorio doble con armarios empotrados y acceso a balcones. Un tercer baño familiar también se puede encontrar en el primer piso. Desde el primer piso, unas escaleras conducen a un solárium privado en la azotea con cocina de verano con fregadero, encimera y armario con mininevera. Fantásticas vistas desde el solárium, gracias a su ubicación junto al mar. Aislamiento térmico energéticamente eficiente, además de un alto nivel de insonorización. Mamparas de ducha con dos opciones disponibles. Tomas de TV y teléfono en salón, dormitorios y en solárium. Puertas interiores, carpintería y armarios empotrados en color blanco. Doble acristalamiento con óptima protección solar. Sistema de agua caliente mediante caldera eléctrica regulable y placas solares fotovoltaicas de 1,5kw. Preinstalación para cargador de coche eléctrico.
Los Alcázares es un popular pueblo costero donde podrás encontrar tiendas, bares, restaurantes, supermercados, farmacias, un centro de salud, parada de taxis y paradas de autobús. Magníficas comunicaciones, con la autopista AP7 próxima. El Aeropuerto Internacional de Murcia está a menos de media hora en coche (40 km) y al aeropuerto de Alicante se puede llegar en menos de una hora (93 km). El prestigioso Roda Golf Beach Resort, con su campo de 18 hoyos diseñado por Dave Thomas, está a solo 2,5 km.
Para más información sobre estas últimas villas de nueva construcción en Los Alcázares, contáctenos hoy
Promoción de nueva construcción de 12 exclusivas villas independientes, cada una con piscina privada y solárium en la azotea, ubicada a solo 150 metros de la hermosa playa de Los Narejos y a solo 2 minutos a pie de la animada franja de Río Nalón con su gran cantidad de bares y restaurantes.
Casas de autor, construidas con los más altos estándares en una de las mejores ubicaciones del Mar Menor.
Estas últimas villas de nueva construcción en Los Alcázares tienen más de 120m2 de espacio habitable más jardines privados de más de 100m2, con estacionamiento fuera de la carretera disponible en la parcela y una piscina privada de 6m x 3m con plataforma para tomar el sol incluida. Todos los electrodomésticos incluidos: frigorífico-congelador, horno, microondas, placa vitrocerámica, campana extractora, lavavajillas, lavadora y mini-nevera en la cocina de verano. Preinstalación de aire acondicionado por conductos en toda la vivienda. Iluminación interior y exterior, excepto luces ornamentales. Persianas motorizadas. En la planta baja se encuentra un luminoso salón-comedor con cocina abierta, un baño y una habitación adicional en la planta baja de 13m2 que podría usarse como tercer dormitorio, comedor independiente o como garaje; esta habitación tendrá puertas de vidrio panorámicas que se abren hacia afuera y que permitirán estacionar un automóvil en el interior si es necesario (*aunque este espacio interno se puede usar para lo que requieran los propietarios y se preparará como dormitorio, se incluirá como garaje en las escrituras). También hay un trastero exterior y una bomba de piscina en el patio trasero. En el primer piso hay un dormitorio principal con baño en suite, dos armarios empotrados y acceso directo a un balcón, además de otro dormitorio doble con armarios empotrados y acceso a balcones. Un tercer baño familiar también se puede encontrar en el primer piso. Desde el primer piso, unas escaleras conducen a un solárium privado en la azotea con cocina de verano con fregadero, encimera y armario con mininevera. Fantásticas vistas desde el solárium, gracias a su ubicación junto al mar. Aislamiento térmico energéticamente eficiente, además de un alto nivel de insonorización. Mamparas de ducha con dos opciones disponibles. Tomas de TV y teléfono en salón, dormitorios y en solárium. Puertas interiores, carpintería y armarios empotrados en color blanco. Doble acristalamiento con óptima protección solar. Sistema de agua caliente mediante caldera eléctrica regulable y placas solares fotovoltaicas de 1,5kw. Preinstalación para cargador de coche eléctrico.
Los Alcázares es un popular pueblo costero donde podrás encontrar tiendas, bares, restaurantes, supermercados, farmacias, un centro de salud, parada de taxis y paradas de autobús. Magníficas comunicaciones, con la autopista AP7 próxima. El Aeropuerto Internacional de Murcia está a menos de media hora en coche (40 km) y al aeropuerto de Alicante se puede llegar en menos de una hora (93 km). El prestigioso Roda Golf Beach Resort, con su campo de 18 hoyos diseñado por Dave Thomas, está a solo 2,5 km.
Para más información sobre estas últimas villas de nueva construcción en Los Alcázares, contáctenos hoy
- 3/11/2025
- 118 m2
- 5.584,75 €/m2
- 3
- 3
Zebra Homes
Contactar
Compartir
Tu opinión





















