Villa en venta en Los Alcázares zona La Concha
Datos básicos
- NB-18791
- 419.900 €
- 117 m2(3.589 €/m2)
- Murcia
- Los Alcázares
- La Concha
Distribución e instalaciones
- 3
- 2
Varios
- Sí
Certificado energético
Detalles
419.900 €
Villas de Obra Nueva con Piscina Privada en Los Alcázares, Costa Cálida
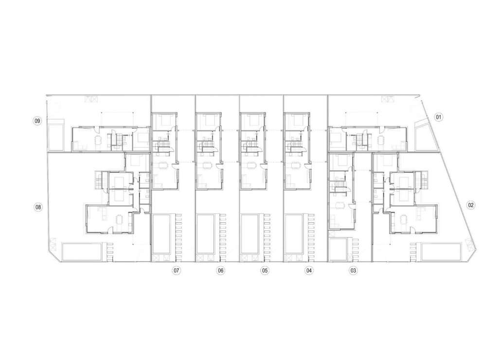
Exclusivas Villas Modernas a Solo 700 Metros del MarDescubre este exclusivo residencial de 9 villas de obra nueva en Los Alcázares, una de las localidades más valoradas de la Costa Cálida por su cercanía al mar, su ambiente relajado y su excelente oferta de servicios. Cada villa cuenta con piscina privada, garaje cubierto independiente, y ha sido diseñada para ofrecer confort, funcionalidad y estilo contemporáneo.
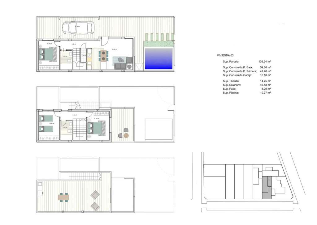
Diseño Dúplex con Solárium y Orientación IdealLas viviendas se distribuyen en dos plantas y cuentan con 3 dormitorios y 2 baños, cocina de estilo abierto completamente equipada, amplio salón comedor, terraza y jardín en planta baja, terraza en planta primera y solárium privado en planta cubierta con cocina de verano. Gracias a sus diferentes orientaciones, permiten aprovechar el sol durante todo el día, todo el año.
Equipamiento de Alta CalidadEstas villas están diseñadas con materiales de primera calidad y ofrecen:
Piscina privada con ducha exteriorCocina equipada con electrodomésticos: frigorífico, horno elevado, microondas empotrado, vitrocerámica, campana extractora y lavavajillas integradoArmarios empotrados forrados con cajonerasBaños completos con mueble, espejo con luz y mamparas de duchaPreinstalación de aire acondicionadoInstalación de 2 paneles solaresCocina de verano en el soláriumPlaza de garaje cubierta en parcela
Ubicación Inmejorable en la Costa CálidaSituadas a solo 700 metros de las playas del Mar Menor, estas viviendas permiten disfrutar de un entorno natural único con aguas tranquilas y cálidas. Los Alcázares combina un estilo de vida relajado con todos los servicios a mano: supermercados, restaurantes, instalaciones deportivas y centros de salud. Ideal tanto para residencia habitual como para vacaciones.
Distancias a Puntos de InterésPlaya del Mar Menor: 0.7 kmCampos de golf (Roda, La Serena, Mar Menor Golf): entre 3 y 10 kmAeropuerto Internacional de Murcia: 30 kmCartagena: 22 kmCentro comercial Dos Mares: 13 kmPuerto deportivo de Los Alcázares: 2 km
Tu Refugio de Sol y Tranquilidad en el MediterráneoEstas villas ofrecen la combinación perfecta entre diseño moderno, privacidad, confort y una ubicación privilegiada.
Contacta con nosotros hoy y agenda tu visita para descubrir tu próxima vivienda junto al mar.
Exclusivas Villas Modernas a Solo 700 Metros del MarDescubre este exclusivo residencial de 9 villas de obra nueva en Los Alcázares, una de las localidades más valoradas de la Costa Cálida por su cercanía al mar, su ambiente relajado y su excelente oferta de servicios. Cada villa cuenta con piscina privada, garaje cubierto independiente, y ha sido diseñada para ofrecer confort, funcionalidad y estilo contemporáneo.
Diseño Dúplex con Solárium y Orientación IdealLas viviendas se distribuyen en dos plantas y cuentan con 3 dormitorios y 2 baños, cocina de estilo abierto completamente equipada, amplio salón comedor, terraza y jardín en planta baja, terraza en planta primera y solárium privado en planta cubierta con cocina de verano. Gracias a sus diferentes orientaciones, permiten aprovechar el sol durante todo el día, todo el año.
Equipamiento de Alta CalidadEstas villas están diseñadas con materiales de primera calidad y ofrecen:
Piscina privada con ducha exteriorCocina equipada con electrodomésticos: frigorífico, horno elevado, microondas empotrado, vitrocerámica, campana extractora y lavavajillas integradoArmarios empotrados forrados con cajonerasBaños completos con mueble, espejo con luz y mamparas de duchaPreinstalación de aire acondicionadoInstalación de 2 paneles solaresCocina de verano en el soláriumPlaza de garaje cubierta en parcela
Ubicación Inmejorable en la Costa CálidaSituadas a solo 700 metros de las playas del Mar Menor, estas viviendas permiten disfrutar de un entorno natural único con aguas tranquilas y cálidas. Los Alcázares combina un estilo de vida relajado con todos los servicios a mano: supermercados, restaurantes, instalaciones deportivas y centros de salud. Ideal tanto para residencia habitual como para vacaciones.
Distancias a Puntos de InterésPlaya del Mar Menor: 0.7 kmCampos de golf (Roda, La Serena, Mar Menor Golf): entre 3 y 10 kmAeropuerto Internacional de Murcia: 30 kmCartagena: 22 kmCentro comercial Dos Mares: 13 kmPuerto deportivo de Los Alcázares: 2 km
Tu Refugio de Sol y Tranquilidad en el MediterráneoEstas villas ofrecen la combinación perfecta entre diseño moderno, privacidad, confort y una ubicación privilegiada.
Contacta con nosotros hoy y agenda tu visita para descubrir tu próxima vivienda junto al mar.
- hace 6 días
- 117 m2
- 3.588,89 €/m2
- 3
- 2
Naranja Spain
Contactar
Compartir
Tu opinión






























