Apartamento en venta en Mazarrón
Datos básicos
- SP-66417
- 221.000 €
- 64 m2(3.453 €/m2)
- Murcia
- Mazarrón
Distribución e instalaciones
- 2
- 2
Certificado energético
- B
Detalles
221.000 €
Viviendas de nueva construcción a solo 200 metros de la playa en Puerto de Mazarrón
Vida costera exclusiva en la Costa Cálida
Presentamos una nueva promoción residencial de viviendas modernas en Puerto de Mazarrón, situada a solo 200 metros de la hermosa Playa Negra. Ubicado en una de las zonas costeras más codiciadas de la región de Murcia, este proyecto ofrece una oportunidad excepcional para disfrutar de la vida mediterránea cerca del mar, de los servicios esenciales y del entorno natural.
Puerto de Mazarrón es conocido por sus impresionantes playas, sus aguas cristalinas, su encantador puerto deportivo y su ambiente relajado. Con excelentes servicios, opciones de ocio al aire libre y un clima cálido durante todo el año, es un destino ideal tanto para vivir como para pasar las vacaciones.
Diseño moderno y distribuciones funcionales
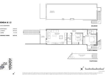
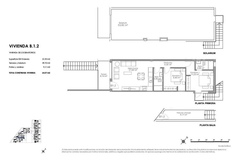
Esta exclusiva promoción se compone de 30 viviendas contemporáneas de 2 dormitorios y 1 o 2 baños, cuidadosamente diseñadas para ofrecer comodidad, estilo y eficiencia. El complejo de baja altura incluye viviendas en la planta baja con terrazas y jardines privados, así como viviendas en la primera planta con terrazas y soláriums privados en la azotea. Las viviendas disponen de plazas de aparcamiento privadas, ya sea en la propiedad o dentro de la residencia.
Las viviendas están orientadas para aprovechar al máximo la luz natural, con espacios diáfanos, grandes ventanales y acabados de primera calidad. La primera fase ofrece viviendas personalizables con distribuciones funcionales que se pueden adaptar a las necesidades de su estilo de vida.
Las viviendas de la planta baja incluyen un jardín privado, un patio trasero y aparcamiento en la parcela o en la comunidad.
Las viviendas de la última planta ofrecen una zona de acceso privado en la planta baja, terraza en la primera planta y solárium en la azotea, además de aparcamiento asignado.
Los extras opcionales incluyen piscinas privadas en las terrazas de la planta baja o jacuzzis en los soláriums.
Especificaciones de alta calidad
Cada propiedad incluye
Puerta de entrada reforzada
Preinstalación para aire acondicionado por conductos
Baños completos con muebles, espejos y mamparas de ducha
Espacios exteriores diseñados para barbacoas, pérgolas y zonas de descanso
Esta comunidad residencial ofrece un entorno seguro, familiar y consolidado, a poca distancia de supermercados, colegios, servicios médicos, parques y la playa.
Ubicación privilegiada en Puerto de Mazarrón
Distancias a puntos de interés clave
Playa Negra 0,2 km
Puerto deportivo de Mazarrón 2 km
Centro comercial Mazarrón Park 5 km
Cartagena 35 km
Ciudad de Murcia 70 km
Aeropuerto de Murcia Corvera 45 km
Campos de golf Camposol y Hacienda del Álamo 25-35 km
Disfrute de los deportes acuáticos, el senderismo y el ciclismo en la cercana Sierra de las Moreras, y descubra lo mejor del estilo de vida de la Costa Cálida.
Haga del Mediterráneo su hogar
No pierda la oportunidad de adquirir una propiedad de nueva construcción a pocos pasos de la playa en Puerto de Mazarrón. Póngase en contacto con nosotros hoy mismo para conocer la disponibilidad, los detalles y concertar una cita para visitarla.
- hace 10 días
- 64 m2
- 3.453,13 €/m2
- 2
- 2
Global Spain
Contactar
Compartir
Tu opinión








