Villa en venta en San Javier zona Roda Golf
Datos básicos
- RS-53288
- 799.000 €
- 140 m2(5.707 €/m2)
- Murcia
- San Javier
- Roda Golf
Distribución e instalaciones
- 3
- 3
Varios
- Sí
Certificado energético
Detalles
799.000 €
Villas de nueva construcción en primera línea de Roda Golf con piscina privada
Vida exclusiva junto al campo de golf en la Costa CálidaEstas modernas villas en primera línea en Roda Golf (Murcia) ofrecen la combinación perfecta de lujo, comodidad y estilo de vida mediterráneo. Situado a solo 3 km de las doradas playas del Mar Menor, este proyecto residencial es ideal para los amantes del golf, los entusiastas de los deportes acuáticos y aquellos que buscan una vivienda tranquila pero bien comunicada en la Costa Cálida. La urbanización está rodeada de servicios, restaurantes, tiendas e instalaciones deportivas, lo que garantiza la comodidad para la vida cotidiana.
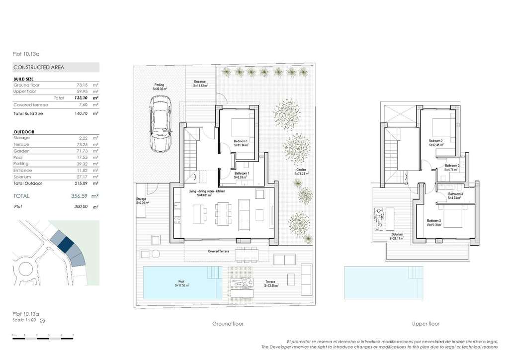
Amplias villas con piscinas privadasCada villa está cuidadosamente diseñada en dos niveles con una superficie total construida de 140 m². La distribución incluye:3 dormitorios (2 en suite)3 baños completamente equipadosSalón luminoso con cocina abiertaDormitorio en la planta baja para mayor comodidadDos dormitorios en la primera planta con acceso directo a la terraza descubiertaDisfrute de la vida al aire libre con una piscina privada, una amplia terraza en la planta baja y una terraza solárium en la primera planta que ofrece vistas ininterrumpidas al campo de golf y sol durante todo el día. Cada propiedad incluye también una plaza de aparcamiento privada en la parcela y un gran trastero exterior.
Características de alta calidadEstas viviendas están construidas con los más altos estándares y cuentan con:Calefacción por suelo radiante en los bañosPersianas motorizadas de aluminio en todos los dormitoriosBaños completamente equipados con muebles, espejos, luces y mamparas de ducha de cristalCocinas modernas con electrodomésticos incluidosPreinstalación de aire acondicionado por conductos en el salón y los dormitoriosPaneles solares con inversor para mayor eficiencia energética
Ubicación privilegiada en Roda GolfSituadas en el prestigioso Roda Golf & Beach Resort, estas villas están rodeadas de exuberantes calles de golf y paisajes mediterráneos. Distancias a los principales puntos de interés:Playas del Mar Menor: 3 kmCentro comercial Dos Mares: 5 kmPuerto deportivo de Lo Pagán: 6 kmClub de golf Roda: a poca distanciaAeropuerto internacional de Murcia (Corvera): 35 kmAeropuerto de Alicante: 85 kmCiudad de Cartagena: 30 km
Viva el estilo de vida mediterráneoYa sea como residencia permanente, refugio vacacional o inversión para alquilar, estas villas ofrecen la combinación perfecta de elegancia, funcionalidad y ubicación.
Póngase en contacto con nosotros hoy mismo para concertar una visita y asegurarse su villa en primera línea en Roda Golf. ¡La casa de sus sueños en la Costa Cálida le espera!
Vida exclusiva junto al campo de golf en la Costa CálidaEstas modernas villas en primera línea en Roda Golf (Murcia) ofrecen la combinación perfecta de lujo, comodidad y estilo de vida mediterráneo. Situado a solo 3 km de las doradas playas del Mar Menor, este proyecto residencial es ideal para los amantes del golf, los entusiastas de los deportes acuáticos y aquellos que buscan una vivienda tranquila pero bien comunicada en la Costa Cálida. La urbanización está rodeada de servicios, restaurantes, tiendas e instalaciones deportivas, lo que garantiza la comodidad para la vida cotidiana.
Amplias villas con piscinas privadasCada villa está cuidadosamente diseñada en dos niveles con una superficie total construida de 140 m². La distribución incluye:3 dormitorios (2 en suite)3 baños completamente equipadosSalón luminoso con cocina abiertaDormitorio en la planta baja para mayor comodidadDos dormitorios en la primera planta con acceso directo a la terraza descubiertaDisfrute de la vida al aire libre con una piscina privada, una amplia terraza en la planta baja y una terraza solárium en la primera planta que ofrece vistas ininterrumpidas al campo de golf y sol durante todo el día. Cada propiedad incluye también una plaza de aparcamiento privada en la parcela y un gran trastero exterior.
Características de alta calidadEstas viviendas están construidas con los más altos estándares y cuentan con:Calefacción por suelo radiante en los bañosPersianas motorizadas de aluminio en todos los dormitoriosBaños completamente equipados con muebles, espejos, luces y mamparas de ducha de cristalCocinas modernas con electrodomésticos incluidosPreinstalación de aire acondicionado por conductos en el salón y los dormitoriosPaneles solares con inversor para mayor eficiencia energética
Ubicación privilegiada en Roda GolfSituadas en el prestigioso Roda Golf & Beach Resort, estas villas están rodeadas de exuberantes calles de golf y paisajes mediterráneos. Distancias a los principales puntos de interés:Playas del Mar Menor: 3 kmCentro comercial Dos Mares: 5 kmPuerto deportivo de Lo Pagán: 6 kmClub de golf Roda: a poca distanciaAeropuerto internacional de Murcia (Corvera): 35 kmAeropuerto de Alicante: 85 kmCiudad de Cartagena: 30 km
Viva el estilo de vida mediterráneoYa sea como residencia permanente, refugio vacacional o inversión para alquilar, estas villas ofrecen la combinación perfecta de elegancia, funcionalidad y ubicación.
Póngase en contacto con nosotros hoy mismo para concertar una visita y asegurarse su villa en primera línea en Roda Golf. ¡La casa de sus sueños en la Costa Cálida le espera!
- 28/12/2025
- 140 m2
- 5.707,14 €/m2
- 3
- 3
Immo Toro
Contactar
Compartir
Tu opinión












