Apartamento en venta en Xeresa zona Xeresa Del Monte
Datos básicos
- RS-61385
- 245.000 €
- 71 m2(3.451 €/m2)
- Valencia
- Xeresa
- Xeresa Del Monte
Distribución e instalaciones
- 2
- 2
Varios
- Sí
Certificado energético
Detalles
245.000 €
Apartamentos de nueva construcción con vistas al mar en Xeresa, Costa Blanca Norte
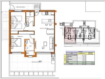
Moderna comunidad residencial con vistas panorámicasPresentamos una excepcional promoción residencial de nueva construcción en una comunidad privada cerrada en Xeresa, que ofrece apartamentos de 1, 2 y 3 dormitorios con 1 o 2 baños y unas impresionantes vistas abiertas. Cada vivienda cuenta con una amplia terraza de más de 15 m2, que ofrece vistas panorámicas de los naranjales, las montañas circundantes o el mar Mediterráneo en la distancia. Diseñada para ofrecer comodidad, luz y un entorno natural, esta promoción es ideal para aquellos que buscan un estilo de vida tranquilo cerca de la costa.
Ubicación privilegiada cerca de playas y serviciosA solo 3 km de la playa y a 1 km del encantador pueblo de Xeresa, los residentes disfrutan de fácil acceso a tiendas, cafeterías y servicios esenciales. La estación de tren de Xeraco, situada a 3 km, ofrece conexiones directas con la ciudad de Valencia, mientras que la popular ciudad costera de Gandía se encuentra a menos de 5 km del complejo y cuenta con centros comerciales, restaurantes, instalaciones de ocio y un hermoso puerto deportivo.
Viviendas de alta calidad diseñadas para el confort y la luminosidadTodos los apartamentos están cuidadosamente diseñados para que las principales zonas de estar se beneficien de la luz natural directa y de las vistas al exterior. La distribución diáfana realza el espacio y crea un ambiente moderno y armonioso, ideal para disfrutar de la vida mediterránea. Las viviendas incluyen plaza de aparcamiento y trastero, ascensor, preinstalación de aire acondicionado por conductos, cocinas amuebladas y equipadas con placa de inducción, campana extractora, horno y lavavajillas, además de acabados de primera calidad de Porcelanosa en toda la vivienda.
Instalaciones comunitarias estilo resortLos residentes pueden disfrutar de tres espectaculares piscinas, una de ellas con cascadas y otra tropical con hidromasaje. La comunidad también ofrece hermosos jardines con senderos para pasear, un gimnasio totalmente equipado con máquinas de última generación, un club social polivalente, zonas de relajación con tumbonas, duchas y sombrillas, y amplios espacios verdes diseñados para el ocio y el bienestar.
Distancias a puntos de interésPlaya 3 kmCentro del pueblo de Xeresa 1 kmEstación de tren de Xeraco a 3 kmGandía a 5 kmCiudad de Valencia a 60 kmAeropuerto de Valencia a 70 kmPuerto deportivo de Gandía a 6 km
Disfrute de la vida mediterránea en plena naturaleza y cerca del marDescubra una oportunidad excepcional de adquirir una vivienda moderna con vistas al mar o a la montaña en un entorno tranquilo y bien comunicado. Póngase en contacto con nosotros hoy mismo para obtener más información o concertar una visita y asegurarse su nueva vivienda en Xeresa.
Moderna comunidad residencial con vistas panorámicasPresentamos una excepcional promoción residencial de nueva construcción en una comunidad privada cerrada en Xeresa, que ofrece apartamentos de 1, 2 y 3 dormitorios con 1 o 2 baños y unas impresionantes vistas abiertas. Cada vivienda cuenta con una amplia terraza de más de 15 m2, que ofrece vistas panorámicas de los naranjales, las montañas circundantes o el mar Mediterráneo en la distancia. Diseñada para ofrecer comodidad, luz y un entorno natural, esta promoción es ideal para aquellos que buscan un estilo de vida tranquilo cerca de la costa.
Ubicación privilegiada cerca de playas y serviciosA solo 3 km de la playa y a 1 km del encantador pueblo de Xeresa, los residentes disfrutan de fácil acceso a tiendas, cafeterías y servicios esenciales. La estación de tren de Xeraco, situada a 3 km, ofrece conexiones directas con la ciudad de Valencia, mientras que la popular ciudad costera de Gandía se encuentra a menos de 5 km del complejo y cuenta con centros comerciales, restaurantes, instalaciones de ocio y un hermoso puerto deportivo.
Viviendas de alta calidad diseñadas para el confort y la luminosidadTodos los apartamentos están cuidadosamente diseñados para que las principales zonas de estar se beneficien de la luz natural directa y de las vistas al exterior. La distribución diáfana realza el espacio y crea un ambiente moderno y armonioso, ideal para disfrutar de la vida mediterránea. Las viviendas incluyen plaza de aparcamiento y trastero, ascensor, preinstalación de aire acondicionado por conductos, cocinas amuebladas y equipadas con placa de inducción, campana extractora, horno y lavavajillas, además de acabados de primera calidad de Porcelanosa en toda la vivienda.
Instalaciones comunitarias estilo resortLos residentes pueden disfrutar de tres espectaculares piscinas, una de ellas con cascadas y otra tropical con hidromasaje. La comunidad también ofrece hermosos jardines con senderos para pasear, un gimnasio totalmente equipado con máquinas de última generación, un club social polivalente, zonas de relajación con tumbonas, duchas y sombrillas, y amplios espacios verdes diseñados para el ocio y el bienestar.
Distancias a puntos de interésPlaya 3 kmCentro del pueblo de Xeresa 1 kmEstación de tren de Xeraco a 3 kmGandía a 5 kmCiudad de Valencia a 60 kmAeropuerto de Valencia a 70 kmPuerto deportivo de Gandía a 6 km
Disfrute de la vida mediterránea en plena naturaleza y cerca del marDescubra una oportunidad excepcional de adquirir una vivienda moderna con vistas al mar o a la montaña en un entorno tranquilo y bien comunicado. Póngase en contacto con nosotros hoy mismo para obtener más información o concertar una visita y asegurarse su nueva vivienda en Xeresa.
- hace 23 días
- 71 m2
- 3.450,7 €/m2
- 2
- 2
Immo Toro
Contactar
Compartir
Tu opinión

























