Apartamento en venta en Torrevieja zona Los Balcones
Datos básicos
- NBZH-81812
- 340.000 €
- 99 m2(3.434 €/m2)
- Alicante
- Torrevieja
- Los Balcones
Distribución e instalaciones
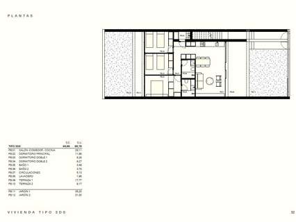
- 3
- 2
Varios
- Sí
Certificado energético
Detalles
340.000 €
Apartamentos residenciales de nueva construcción en Los Balcones, Torrevieja #13; #13;Viviendas modernas en una zona residencial privilegiada #13;Descubra este atractivo complejo residencial de nueva construcción situado en Los Balcones, uno de los barrios más populares y consolidados de las afueras de Torrevieja. Ubicado en un entorno tranquilo con excelente acceso a todos los servicios esenciales, este complejo se encuentra a solo 4 km de las playas de arena de la Costa Blanca. Los Balcones es conocido por su ambiente relajado, sus amplias calles, sus zonas verdes y su proximidad a hospitales, supermercados, restaurantes y centros comerciales, lo que lo hace ideal para vivir todo el año o para pasar las vacaciones. #13; #13;Apartamentos contemporáneos con espacios exteriores privados #13;El complejo consta de 52 apartamentos modernos construidos en una superficie total de 6700 m2. Cada propiedad incluye una plaza de aparcamiento privada y un trastero en el sótano. Las viviendas ofrecen 2 o 3 dormitorios y 2 baños, uno de ellos en suite. #13; #13;Los compradores pueden elegir entre apartamentos en planta baja con jardín privado o viviendas en plantas superiores con una amplia terraza y solárium privado. Estas distribuciones están diseñadas para maximizar la luz natural y proporcionar cómodos espacios interiores y exteriores para disfrutar del clima mediterráneo durante todo el año. #13; #13;Zonas comunes diseñadas para el relax #13;El proyecto se distribuye en cuatro bloques que rodean una gran zona común central. Este corazón verde de la urbanización cuenta con una piscina con zona infantil y unos jardines con un bonito diseño paisajístico. Estos espacios compartidos son perfectos para relajarse, socializar y pasar tiempo en familia en un entorno seguro y agradable. #13; #13;Características de calidad y diseño energéticamente eficiente #13;Cada apartamento está construido según los estándares modernos e incluye la preinstalación de aire acondicionado por conductos, un sistema de agua caliente aerotérmica para mejorar la eficiencia energética, iluminación exterior y carpintería exterior con doble acristalamiento. Las cocinas están completamente equipadas, ofreciendo un espacio funcional y elegante para la vida diaria. #13; #13;Estas características garantizan un alto nivel de confort, un bajo mantenimiento y un consumo energético reducido, lo que hace que las viviendas sean prácticas y sostenibles. #13; #13;Excelente ubicación cerca de playas y campos de golf #13;Los Balcones ofrece una ubicación estratégica cerca de muchos puntos de interés. Las playas de Torrevieja están a unos 4 km. Varios campos de golf de renombre, como Villamartin Golf, Las Ramblas Golf y Campoamor Golf, se encuentran a entre 10 y 15 km. El Hospital Universitario de Torrevieja está a menos de 2 km, lo que añade comodidad y tranquilidad. #13; #13;El centro de Torrevieja está a unos 5 km, conectado por autobús con Los Balcones, donde encontrará una amplia gama de tiendas, restaurantes, locales culturales y un animado puerto deportivo. El aeropuerto internacional de Alicante se encuentra a unos 42 km, lo que facilita las conexiones internacionales. El puerto de Torrevieja está a unos 6 km. #13; #13;Ideal para vivir o invertir #13;Con su diseño moderno, sus excelentes zonas comunes y su ubicación privilegiada cerca de playas, campos de golf y servicios, este nuevo complejo residencial en Los Balcones Torrevieja es perfecto como residencia permanente, casa de vacaciones o oportunidad de inversión. #13; #13;Póngase en contacto con nosotros hoy mismo para obtener más información o concertar una visita a estos apartamentos de nueva construcción en Los Balcones, Torrevieja. #13;
- hace 15 días
- 99 m2
- 3.434,34 €/m2
- 3
- 2
Zebra Homes
Contactar
Compartir
Tu opinión

















