Apartamento en venta en Torrevieja zona Center
Datos básicos
- SP-87267
- 169.000 €
- 52 m2(3.250 €/m2)
- Alicante
- Torrevieja
- Center
Distribución e instalaciones
- 1
- 1
Certificado energético
- B
Detalles
169.000 €
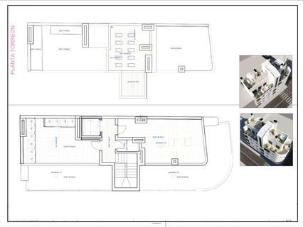
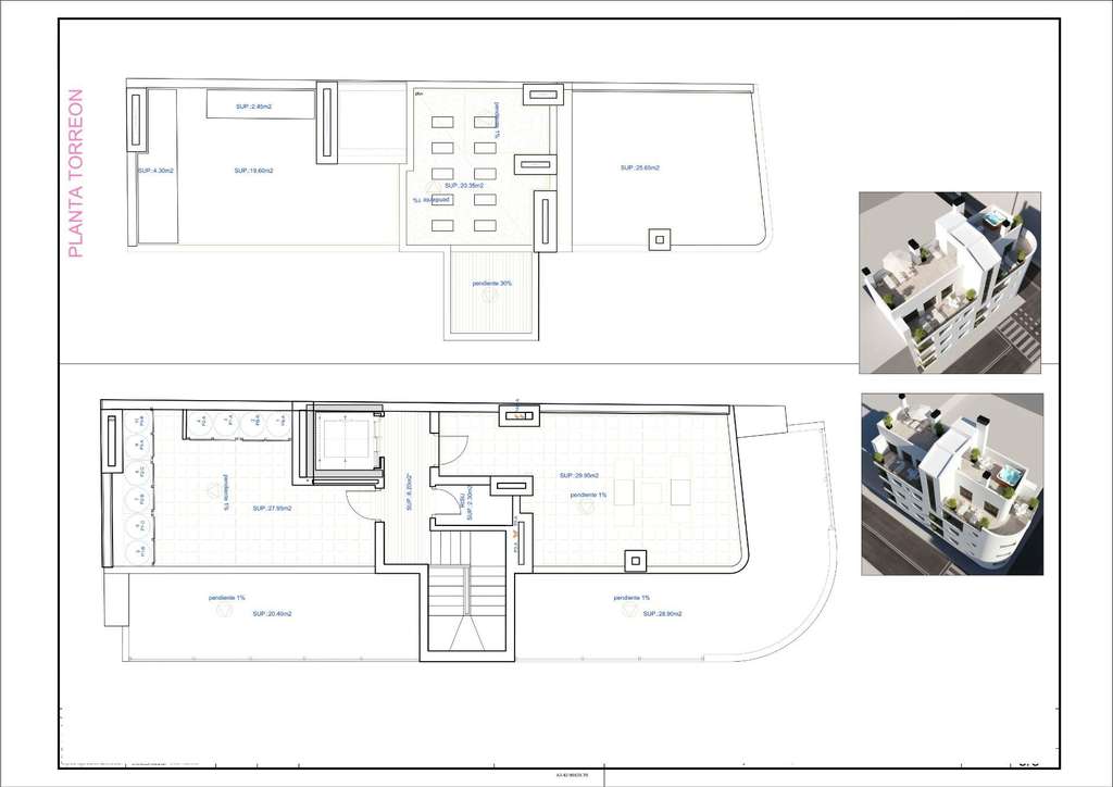
APARTAMENTOS DE OBRA NUEVA EN TORREVIEJA
Apartamentos y áticos de obra nueva en Torrevieja.
Residencial de obra nueva de 12 exclusivos apartamentos y áticos de 1 y 2 dormitorios, 1 y 2 baños, con cocina americana y salón, amplios armarios empotrados, baños completos con suelo radiante.
Todas las persianas de aluminio motorizadas.
Puerta de entrada blindada con cerradura de seguridad.
Preinstalación de aire acondicionado y calefacción.
Complejo residencial de nueva construcción con diseño moderno y acabados de alta calidad cuenta con un precioso solarium comunitario.
Torrevieja es una ciudad española de la provincia de Alicante, en la Costa Blanca.
Es conocida por su clima típicamente mediterráneo y su costa. Tiene paseos marítimos con complejos turísticos a lo largo de sus playas de arena.
El pequeño Museo del Mar y de la Sal alberga exposiciones sobre la historia pesquera y salinera de la ciudad.
En el interior, el Parque Natural de las Lagunas de La Mata-Torrevieja cuenta con senderos y dos lagunas saladas, una rosa y otra verde.
El aeropuerto de Alicante está a 40 minutos y el de Murcia, a 1 hora.
- ayer
- 52 m2
- 3.250 €/m2
- 1
- 1
Global Spain
Contactar
Compartir
Tu opinión




















