Apartamento en venta en Torrevieja zona Costa Blanca
Datos básicos
- GSR-38028
- 175.000 €
- 47 m2(3.723 €/m2)
- Alicante
- Torrevieja
- Costa Blanca
Distribución e instalaciones
- 1
- 1
Certificado energético
Detalles
175.000 €
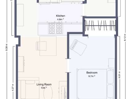
Este apartamento de 1 dormitorio y 1 baño está en excelente estado, en un edificio construido en 2021. Se vende totalmente amueblado, con muebles de alta calidad y listos para usar.El dormitorio dispone de un armario y una cama con arcón, que permite aprovechar el espacio de almacenamiento bajo el colchón. En el salón hay un sofá cama, ideal para invitados o para ampliar la capacidad de alojamiento.Junto a la cocina se encuentra un utility room, donde está instalado el calentador de agua y espacio adicional para almacenamiento.La cocina está totalmente equipada y abierta al salón, que disfruta de una excelente orientación sur, ofreciendo un ambiente luminoso y acogedor durante todo el día.La vivienda incluye plaza de garaje y el residencial dispone de piscina comunitaria.Un apartamento moderno, como nuevo, ideal para vivir todo el año o como inversión.
- hace 33 horas
- 47 m2
- 3.723,4 €/m2
- 1
- 1
Global Spain
Contactar
Compartir
Tu opinión
















