Bungalow en venta en Torrevieja zona La Mata-La Manguilla
Datos básicos
- M-56976
- 550.000 €
- 166 m2(3.313 €/m2)
- Alicante
- Torrevieja
- La Mata-La Manguilla
Distribución e instalaciones
- 2
- 2
Varios
- Sí
Certificado energético
- A
Detalles
550.000 €
Bungalows de Obra Nueva con Vistas al Mar en La Mata, Torrevieja
Ubicación Privilegiada a 300 Metros de la Playa
Este exclusivo residencial de obra nueva se encuentra en La Mata, Torrevieja, una de las zonas más codiciadas de la Costa Blanca. A solo 300 metros de la playa, esta promoción ofrece un entorno natural excepcional con vistas panorámicas al mar y fácil acceso a todos los servicios esenciales.
La Mata es una zona vibrante con un encanto especial, rodeada de paseos marítimos, restaurantes, cafeterías y supermercados, lo que la convierte en el destino perfecto tanto para vivir todo el año como para disfrutar de una segunda residencia junto al mar.
Diseño Moderno y Eficiencia Energética
Este residencial destaca por su elegante arquitectura mediterránea con un toque vanguardista. Diseñado bajo el estándar Passivhaus, garantiza una construcción sostenible que proporciona máximo confort térmico y eficiencia energética, reduciendo el consumo y el impacto ambiental.
Las viviendas cuentan con acabados de alta calidad, espacios amplios y abundante luz natural, logrando un equilibrio perfecto entre diseño y funcionalidad.
Opciones de Vivienda para Todos los Estilos de Vida
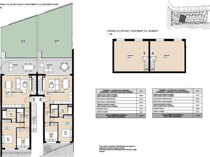
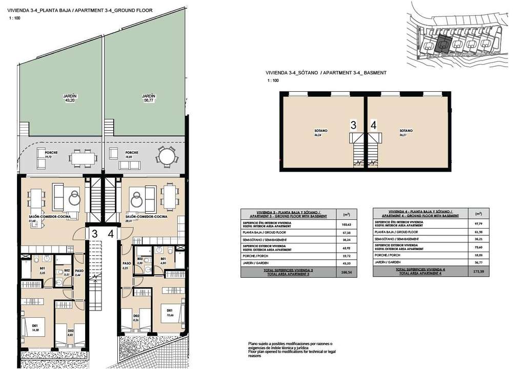
Apartamentos en planta baja con gran jardín privado con vistas al mar y espacio suficiente para una piscina privada. Además, incluyen un semisótano con la posibilidad de añadir dormitorios adicionales.
Apartamentos en planta alta con amplio balcón, solárium privado y espectaculares vistas al mar, perfectos para disfrutar del sol mediterráneo.
Exclusivas Zonas Comunes
Este residencial ofrece espacios diseñados para el confort y la relajación:
Piscina infinita comunitaria, ideal para refrescarse con vistas panorámicas.
Plaza de parking subterráneo incluida en cada vivienda.
Proximidad a Puntos de Interés
Playa de La Mata – 300 m.
Centro de Torrevieja – 6 km.
Parque Natural de las Lagunas de La Mata-Torrevieja – 2 km.
Campo de Golf La Marquesa – 15 km.
Aeropuerto de Alicante – 40 km (aprox. 40 min).
Aeropuerto de Murcia – 65 km (aprox. 1 hora).
Su Hogar en la Costa Blanca le Espera
Si busca un apartamento de lujo con vistas al mar, en una ubicación privilegiada y con todas las comodidades, este residencial es su mejor opción. Contáctenos hoy mismo para más información y concertar una visita.
- hace 18 días
- 166 m2
- 3.313,25 €/m2
- 2
- 2
Medimar Eiendom
Contactar
Compartir
Tu opinión




















