Villa en venta en Torrevieja zona La Mata Pueblo
Datos básicos
- NB-59192
- 940.000 €
- 310 m2(3.032 €/m2)
- Alicante
- Torrevieja
- La Mata Pueblo
Distribución e instalaciones
- 4
- 4
Varios
- Sí
Certificado energético
Detalles
940.000 €
FANTASTICA VILLA MEDITERRANEA A 60 m DE LA PLAYA Y CON VISTAS AL MAR!!!
Una oportunidad única – comprar una casa moderna a 1 minuto de la playa con vistas directas al mar, en la mejor parte de la ciudad de Torrevieja – La Mata, zona con infraestructura muy bien desarrollada. Es un pequeño pueblo de pescadores con todos los servicios necesarios para el día a día, con 9 km de playas de fina arena y con un clima que te ofrece 300 días de sol al año con una temperatura media de 20ºC.
Villa independiente en zona de amplias avenidas y situación inmejorable, con una parcela de 320 m² y piscina privada.
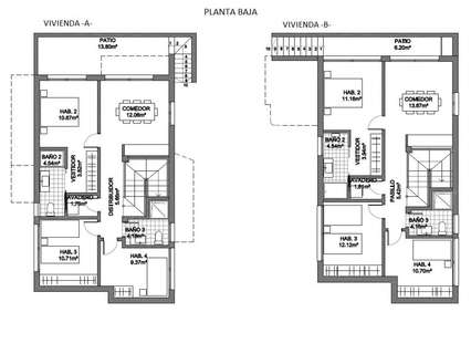
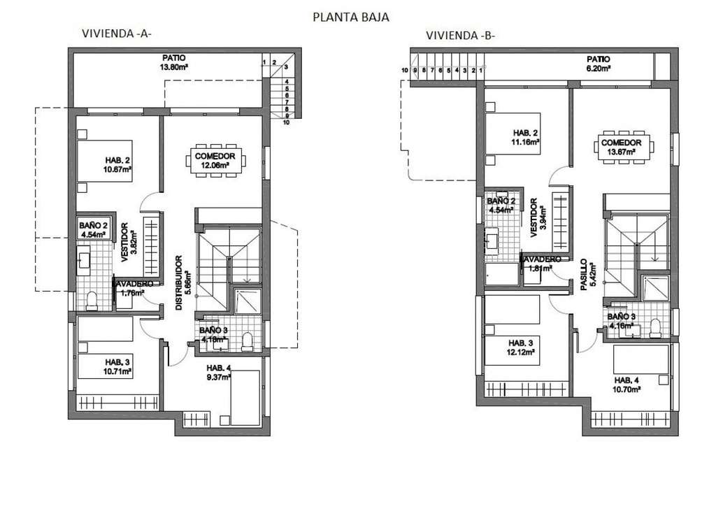
La superficie total de 310 m² construidos. Consta de 4 dormitorios dobles (2 en suite), 4 baños, 2 salones y cocina, además de aparcamiento privado, terrazas y solarium con vistas al mar.
La Mata está conectada con autobús con Torrevieja y con Alicante. Hay 2 hospitales cerca. Campos de golf a 6 km. Aeropuerto de Alicante a 42 km.
Una oportunidad única – comprar una casa moderna a 1 minuto de la playa con vistas directas al mar, en la mejor parte de la ciudad de Torrevieja – La Mata, zona con infraestructura muy bien desarrollada. Es un pequeño pueblo de pescadores con todos los servicios necesarios para el día a día, con 9 km de playas de fina arena y con un clima que te ofrece 300 días de sol al año con una temperatura media de 20ºC.
Villa independiente en zona de amplias avenidas y situación inmejorable, con una parcela de 320 m² y piscina privada.
La superficie total de 310 m² construidos. Consta de 4 dormitorios dobles (2 en suite), 4 baños, 2 salones y cocina, además de aparcamiento privado, terrazas y solarium con vistas al mar.
La Mata está conectada con autobús con Torrevieja y con Alicante. Hay 2 hospitales cerca. Campos de golf a 6 km. Aeropuerto de Alicante a 42 km.
- 23/10/2025
- 310 m2
- 3.032,26 €/m2
- 4
- 4
Naranja Spain
Contactar
Compartir
Tu opinión











