Villa en venta en Torrevieja zona Torreblanca
Datos básicos
- PS-84943
- 750.000 €
- 238 m2(3.151 €/m2)
- Alicante
- Torrevieja
- Torreblanca
Distribución e instalaciones
- 4
- 4
Varios
- Sí
Certificado energético
- B
Detalles
750.000 €
2 VILLAS DE OBRA NUEVA EN TORREVIEJA
2 nuevas villas hermosas en Torrevieja.
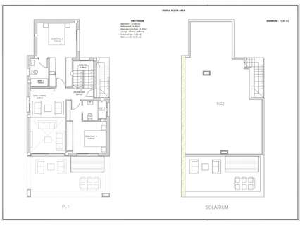
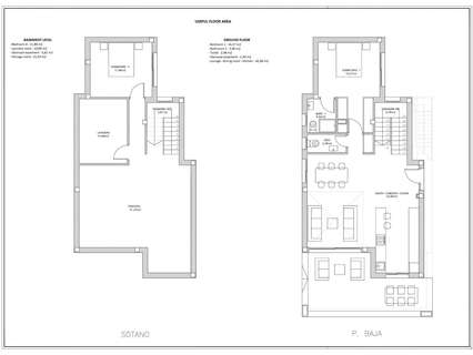
Las villas tienen 4 dormitorios, 4 baños, cocina abierta con el salón, armarios empotrados, jardín privado con la piscina y plaza de aparcamiento fuera de la carretera, solarium privado y sótano.
Villas situado a 15 minutos a pie de la famosa Playa de La Mata (5 minutos en coche).
Torrevieja es una ciudad española en la provincia de Alicante, en la Costa Blanca.
Es conocida por su clima y su costa típicamente mediterráneos. Cuenta con paseos marítimos con complejos turísticos a lo largo de sus playas de arena.
El pequeño Museo del Mar y la Sal alberga exposiciones sobre la historia pesquera y salinera de la ciudad.
En el interior, el Parque Natural de las Lagunas de La Mata-Torrevieja cuenta con senderos y dos lagunas saladas, una rosa y otra verde.
El aeropuerto de Alicante se encuentra a 40 minutos y el de Murcia a una hora.
- hace 6 días
- 238 m2
- 3.151,26 €/m2
- 4
- 4
Global Spain
Contactar
Compartir
Tu opinión





