Villa en venta en Torrevieja zona LOS BALCONES - LOS ALTOS
Datos básicos
- SP-69667
- 750.000 €
- 295 m2(2.542 €/m2)
- Alicante
- Torrevieja
- LOS BALCONES - LOS ALTOS
Distribución e instalaciones
- 3
- 4
Varios
- Sí
Certificado energético
Detalles
750.000 €
VIVIENDA EN URBANIZACIÓN CONSOLIDADA EN LA COSTA
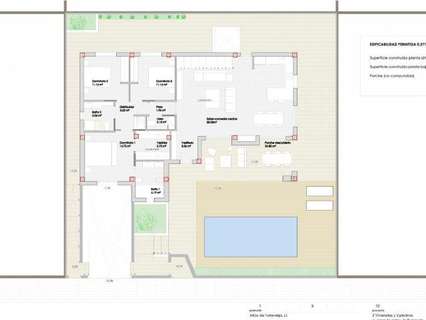
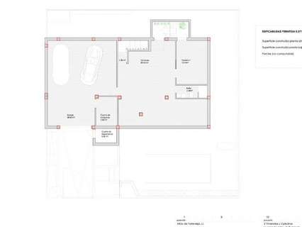
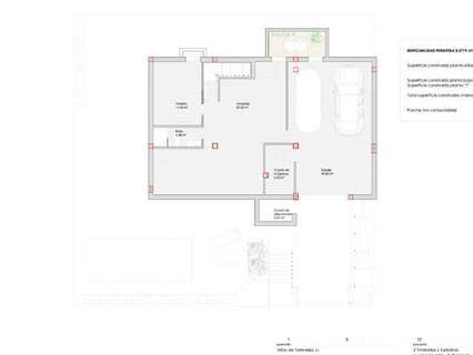
Consta de 3 dormitorios dobles con 4 baños, Salón - Comedor, Cocina.
Piscina Privada, Solárium / Terrazas, Aire Acondicionado, Calefacción Suelo Radiante y Agua Caliente Sanitaria con Aerotermia.
Ubicada en Los Altos, ( Junto Los Balcones). Orientada al Sureste.
DISPONE de todos los servicios, Colegios, Hospitales, Supermercados a escasos metros. Distancia al mar 3 minutos en coche.
Esta villa se encuentra en una de las zonas privilegiadas de la Costa Blanca Sur, más específicamente en Los Altos, a 5 minutos de Playa Punta Prima, Cala Ferry, cerca de todos los servicios; restaurantes, cafeterías, tiendas, centros comerciales, escuelas, hospitales , así como el acceso a la autopista.
- ayer
- 295 m2
- 2.542,37 €/m2
- 3
- 4
Global Spain
Contactar
Compartir
Tu opinión





















